m8architekten
christian winter
mia winter
partmbB
parzivalstraße 25
80804 münchen
t +49.89.321 64 98.40
f +49.89.321 64 98.59
| Standort | München, Nymphenburg |
|---|---|
| Status | fertiggestellt |
| Wohnfläche | 190 m² |
| Projektnummer | 18330 |
In einem um 1985 errichteten Mehrfamilienhaus im Münchner Stadtteil Nymphenburg wurde eine Maisonettewohnung im Dachgeschoss umgebaut und saniert. Insgesamt befinden sich in dem Mehrfamilienhaus 9 Eigentumswohnungen. Das Gebäude ist 3-geschossig, zuzüglich Dachgeschoss. Die Wohnfläche der Maisonettewohnung beträgt ca. 190 m².
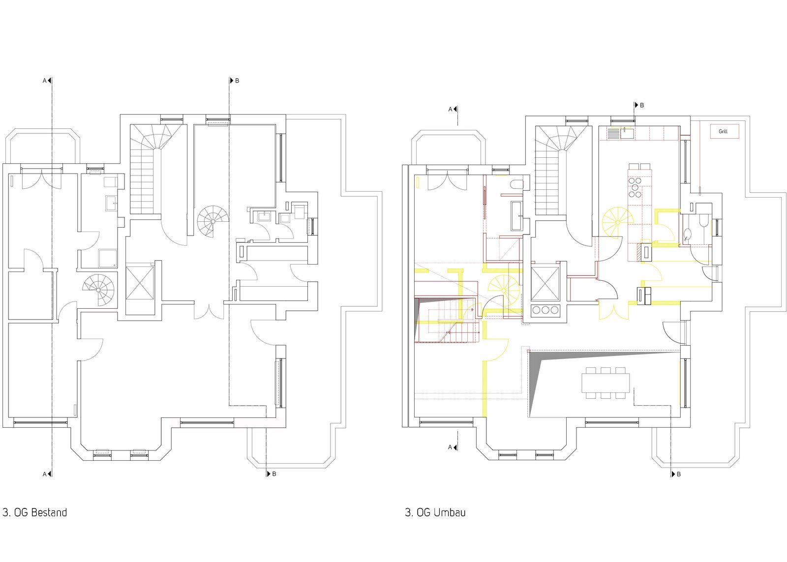
Das Dachgeschoss wurde vor dem Umbau von zwei schmalen Wendeltreppen erschlossen und war in zwei separaten Bereichen getrennt. Die Bauherren haben sich für einen offenen Grundriss im 3.OG entschieden, bei dem lediglich das Schlafzimmer mit Bad en Suite und ein kleines Gäste-WC abgetrennt wurden.
Im 4.OG wurde an Stelle der beiden Bäder nur ein Badezimmer mit Badewanne und ein separater Wäsche-raum geplant. Die Wohnung wurde komplett entkernt. Innenwände und Decken wurden zugunsten der offenen Grundrissgestaltung versetzt und/oder teilweise entfernt. Die komplette Haustechnik mit Heizung und Elektro wurde erneuert. Der Fußboden im 3. und 4. OG wurde, bis auf das Bad en Suite und die Treppe, komplett mit einer hellgrauen Sichtestrichspachtelung gestaltet.
Ziel war es, durch Einschnitte in der Betondecke des 3. Obergeschosses, einen Luftraum mit einer Höhe von 4.70m über den Wohn- und Essbereich der Wohnung zu ermöglichen und zwischen der unteren und oberen Ebene ein großzügiges Raumgefühl herzustellen. Das ehemalige Esszimmer konnte zu einer offenen Küche mit großer Kochinsel umgebaut werden mit fließendem Übergang zum Wohnbereich. Die Wohnung erhielt durch den neuen „Loft-Charakter“ eine Aufwertung und Wertsteigerung.
Das Konzept Schlafzimmer mit Bad en Suite sollte im 3.OG erhalten bleiben und wurde lediglich durch eine Schiebetür und Abtrennungen des WC- und Duschbereichs ergänzt. Anstelle der zwei schmalen Wendeltreppen im 4.OG, wurde eine zweiläufige Treppe mit Holzstufen geplant. Das 4.Obergeschosses wurde mittels einer Brüstung entlang des Flures und einer Glaswand im Arbeitszimmer zum Luftraum geöffnet. Die Baumaßnahme ermöglichte eine direkte Belichtung der beiden Stockwerke durch die bereits vorhandenen Dachfenster.
m8architekten
christian winter
mia winter
partmbB
parzivalstraße 25
80804 münchen
t +49.89.321 64 98.40
f +49.89.321 64 98.59