m8architekten
christian winter
mia winter
partmbB
parzivalstraße 25
80804 münchen
t +49.89.321 64 98.40
f +49.89.321 64 98.59
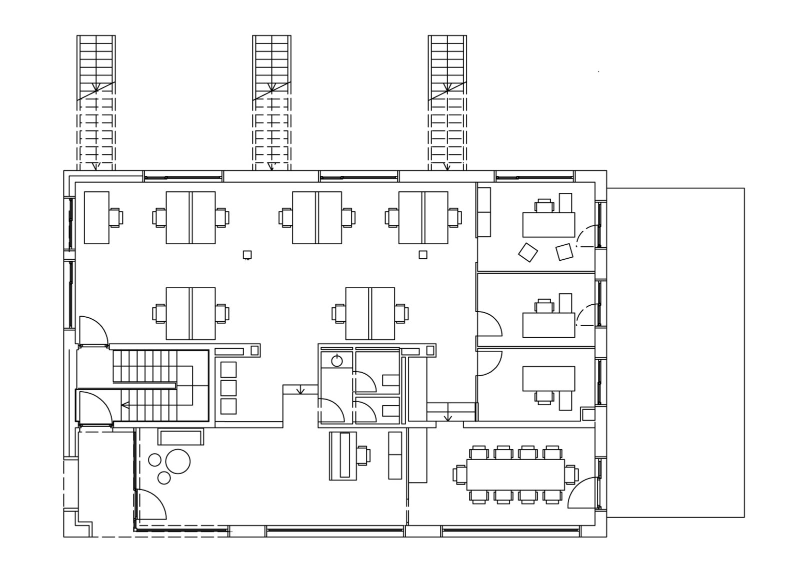
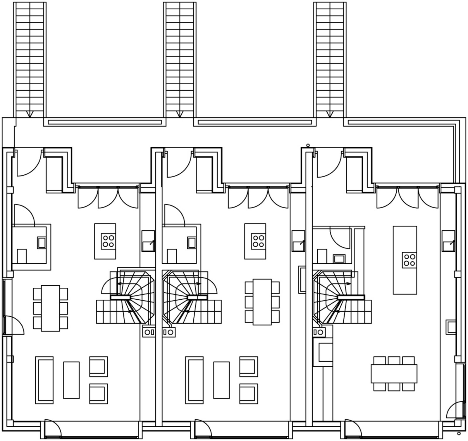
| Programm | Drei Reihenhäuser auf Bürogeschoss |
|---|---|
| Projektname | Haus Mühl |
| Bauherr | Familie Mühl, trinity network |
| Standort | München, Allach |
| Jahr | 2013 |
| Status | realisiert |
| Leistungsphasen | 1-9 |
| Konstruktion | Stahlbeton/Holz |
| Grundstücksfläche | 2078m² |
| Grundfläche | 213m² |
| Geschossfläche | 563m² |
| Wohnfläche | 334m² |
| Bürofläche | 174m² |
| Bruttorauminhalt | 2614 |
| Architektenteam | m8architekten |
| Veröffentlicht | [BR Bayerisches Fernsehen Traumhäuser] Link zum Beitrag http://br.de/s/GTti9d |
| Fotografie | Arne Sattler |
| Projektnummer | 10186 |
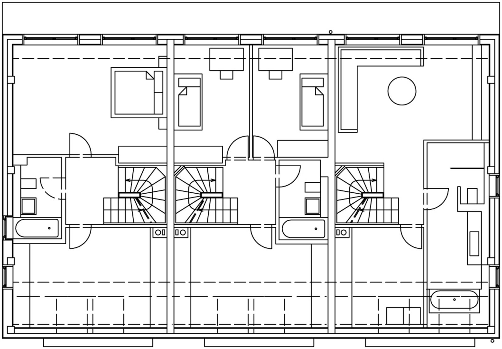
Ein Bauprojekt das die gesamte Familie über vier Generationen hinweg betrifft, samt Schwiegertöchtern und Enkelkinder. Natürlich gingen die Meinungen manchmal auseinander, aber Familie Mühl einigte sich rasch, so dass keine Verzögerungen im Planungsprozess entstanden. Während der Bauphase haben wir entdeckt, dass man aus dem Dachgeschoss die Alpen sehen kann und haben ein zusätzliches Fenster eingebaut. Die herausfordernde Lage des Baugrundstücks und die außergewöhnliche Zusammensetzung der Bauherren haben unseren Entwurf entscheidend beeinflusst. Das Haus liegt an exponierter Stelle direkt an einer vielbefahrenen Straße. Auf den ersten Blick keine gute Wohnlage, aber bestens geeignet, um die IT-Firma “trinity networks” der drei Brüder im Erdgeschoss mit großen Schaufenstern in Szene zu setzen. Den Wohnbereich haben wir darauf gesetzt, in Form von drei Reihenhäusern für die drei Brüder.
So entsteht gleicher Wohnraum für alle. Vom neu angelegten und begrünten Hof führen drei Treppen zu den Eingängen, die auf einer Sonnenterrasse liegen. Gegenüber liegt das Haus der Eltern, so entsteht ein neues Miteinander. Aus dem Wohnzimmer im ersten Stock blickt man durch ein großes Panoramafenster über die Autos hinweg in die dichtbelaubten Bäume der Würmauen. Alle weiteren Räume sind zum ruhigen Hof orientiert. Wir haben eine Mischkonstruktion gewählt – Stahlbetonwände im Erdgeschoss und StB-Stützen in den Obergeschossen, vorgefertigte Holzständerwände für die Reihenhäuser. Dies verkürzt zum einen die Bauzeit, zum Anderen entspricht es der traditionellen Bauweise der Scheunen, die früher an dieser Stelle und auch sonst im Viertel zu finden waren – der Sockel aus Stein, oben Holz. Die Außenverkleidung aus Fichtenbrettern wird im Laufe der Zeit grau werden. Wie bei vielen Projekten ist das Budget begrenzt. Wir haben versucht, dennoch alle Wünsche der Bauherrn umzusetzen und ein für den Ort und die Bewohner maßgeschneidertes Haus zu entwerfen.
m8architekten
christian winter
mia winter
partmbB
parzivalstraße 25
80804 münchen
t +49.89.321 64 98.40
f +49.89.321 64 98.59