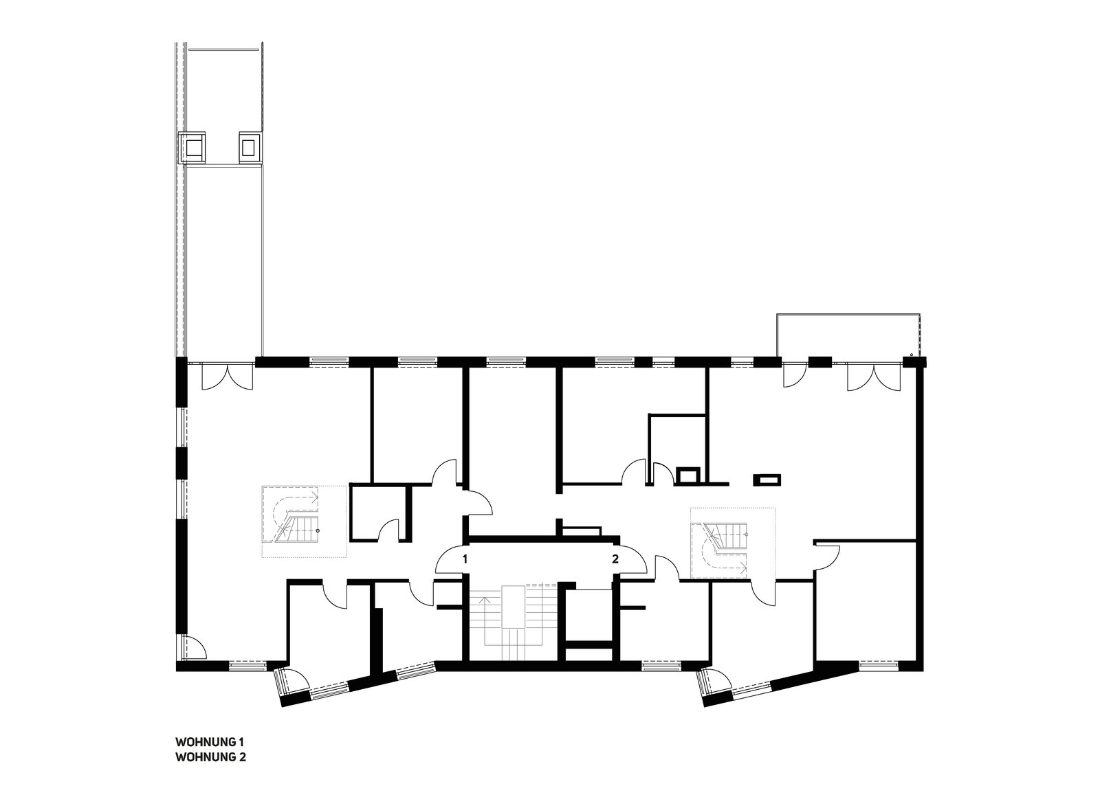
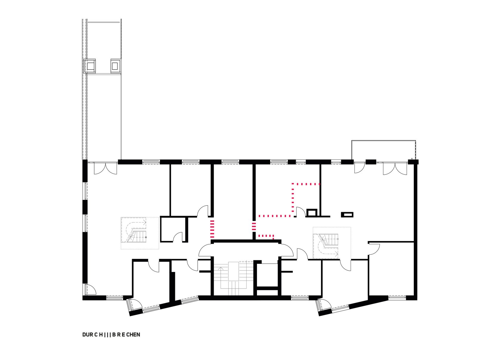
Wohnung K.   Zusammenlegung zweier Wohnungen

22377

m8architekten

christian winter
mia winter
partmbB

parzivalstraße 25
80804 münchen
t +49.89.321 64 98.40
f +49.89.321 64 98.59 

office@m8architekten.com