m8architekten
christian winter
mia winter
partmbB
parzivalstraße 25
80804 münchen
t +49.89.321 64 98.40
f +49.89.321 64 98.59
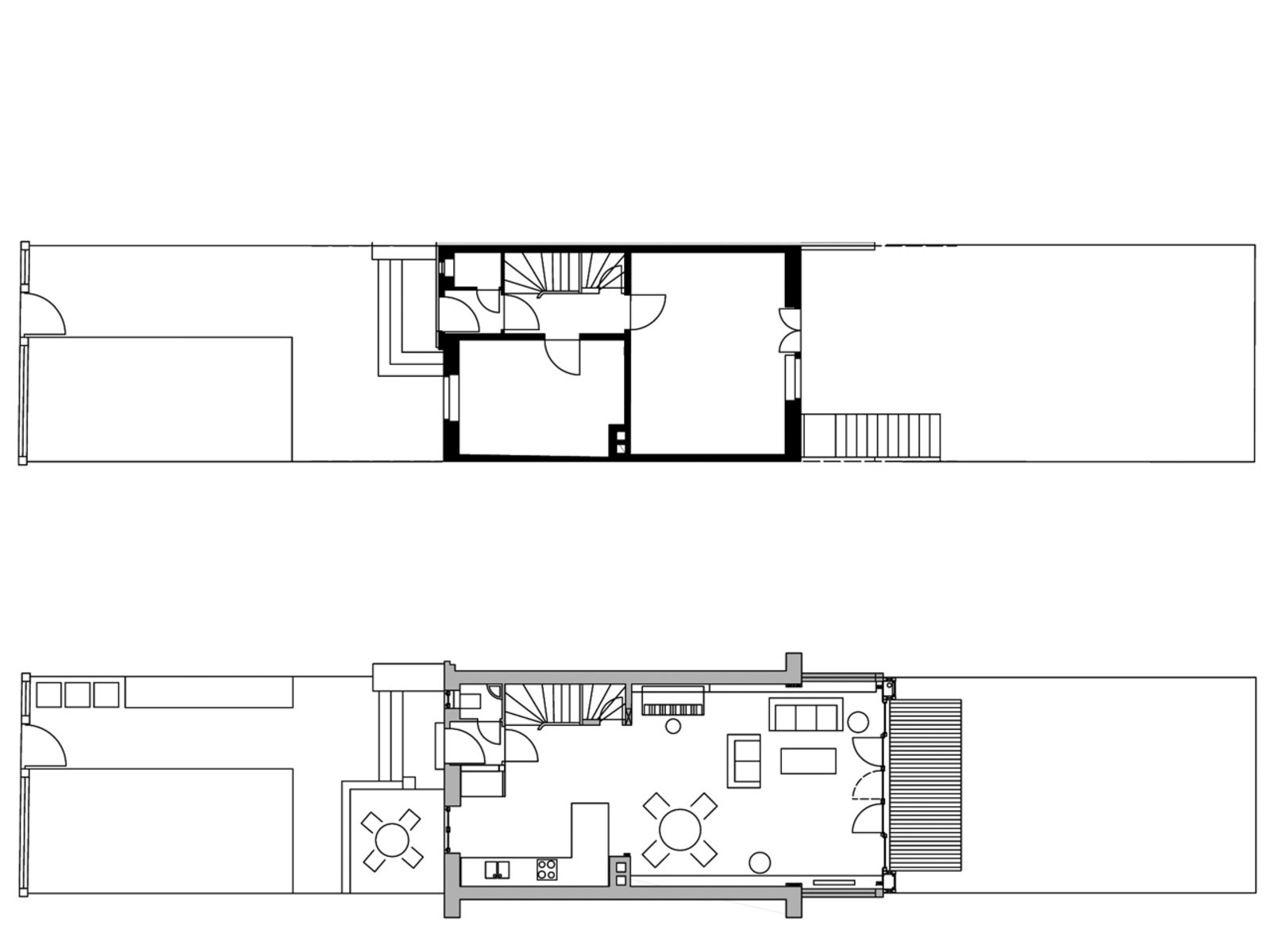
| Programm | Gesamtumbau des Reihenhauses mit Anbau und Dachausbau | Küchenplanung | Sonnenkollekoren |
|---|---|---|---|
| Bauherr | Privat | ||
| Standort | München Harlaching | ||
| Jahr | 2007 | ||
| Leistungsphasen | 1-8 | ||
| Konstruktion | Ziegelmauerwerk | ||
| Wohnfläche vorher | 90m² | ||
| Wohnfläche nachher | 110m² | ||
| BGF | 132m² | ||
| Bruttorauminhalt | 346m³ | ||
| projektnummer | 6106 |
m8architekten
christian winter
mia winter
partmbB
parzivalstraße 25
80804 münchen
t +49.89.321 64 98.40
f +49.89.321 64 98.59