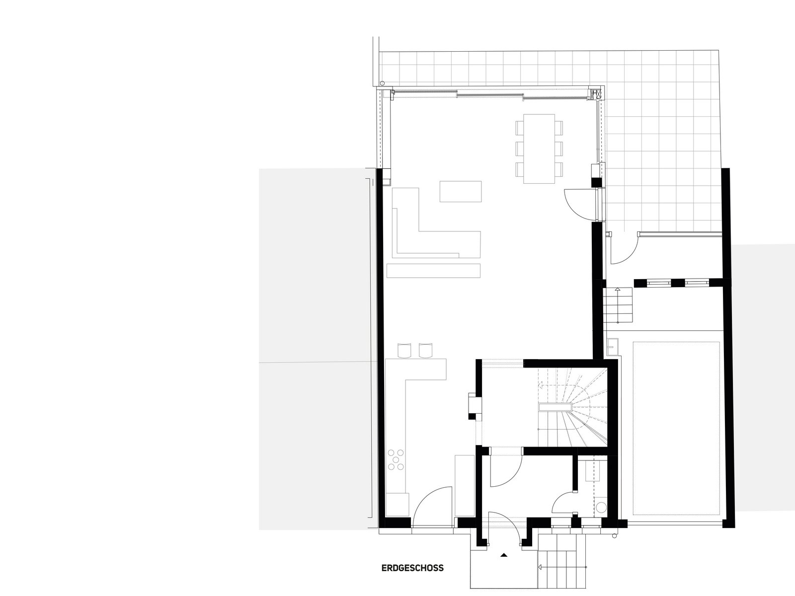
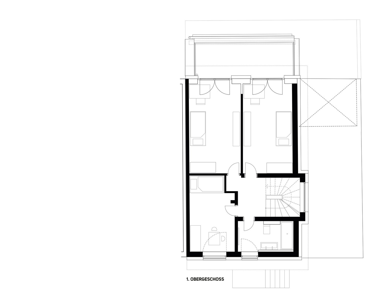
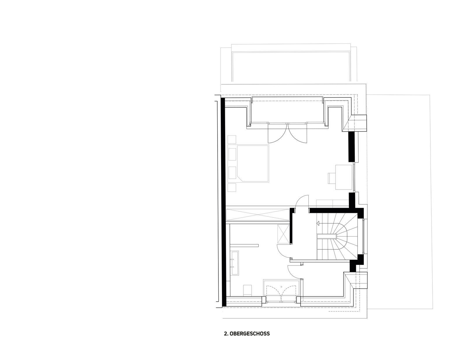
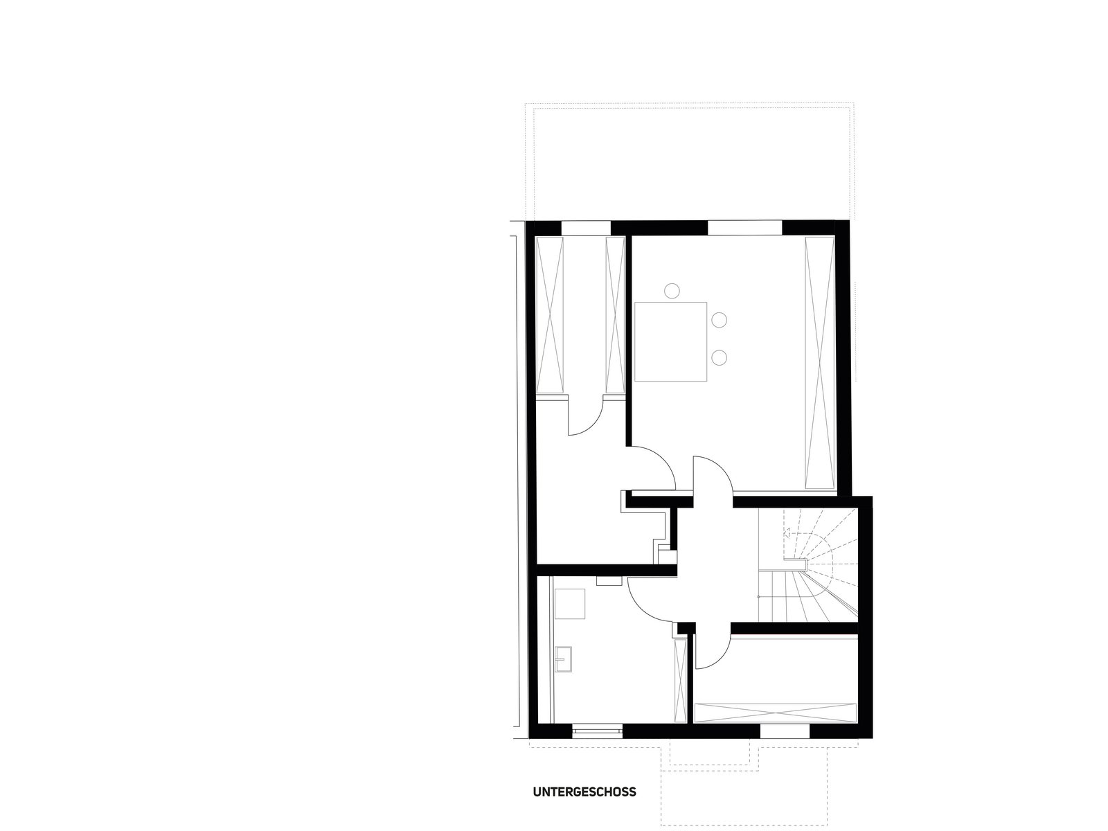
Sanierung einer Doppelhaushälfte   mit Anbau und Dachumbau

20360
Bauherr Privat
Standort MünchenIBogenhausen
Jahr 2023
Status Abgeschlossen
Leistungsphasen 1-8
Projektnummer 20360

m8architekten

christian winter
mia winter
partmbB

parzivalstraße 25
80804 münchen
t +49.89.321 64 98.40
f +49.89.321 64 98.59 

office@m8architekten.com