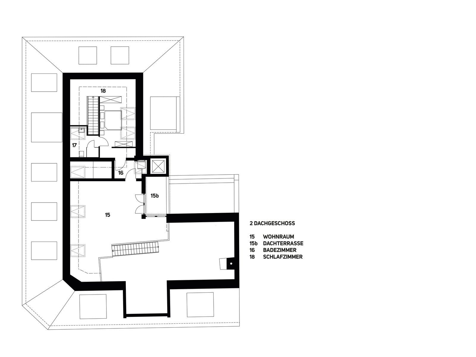
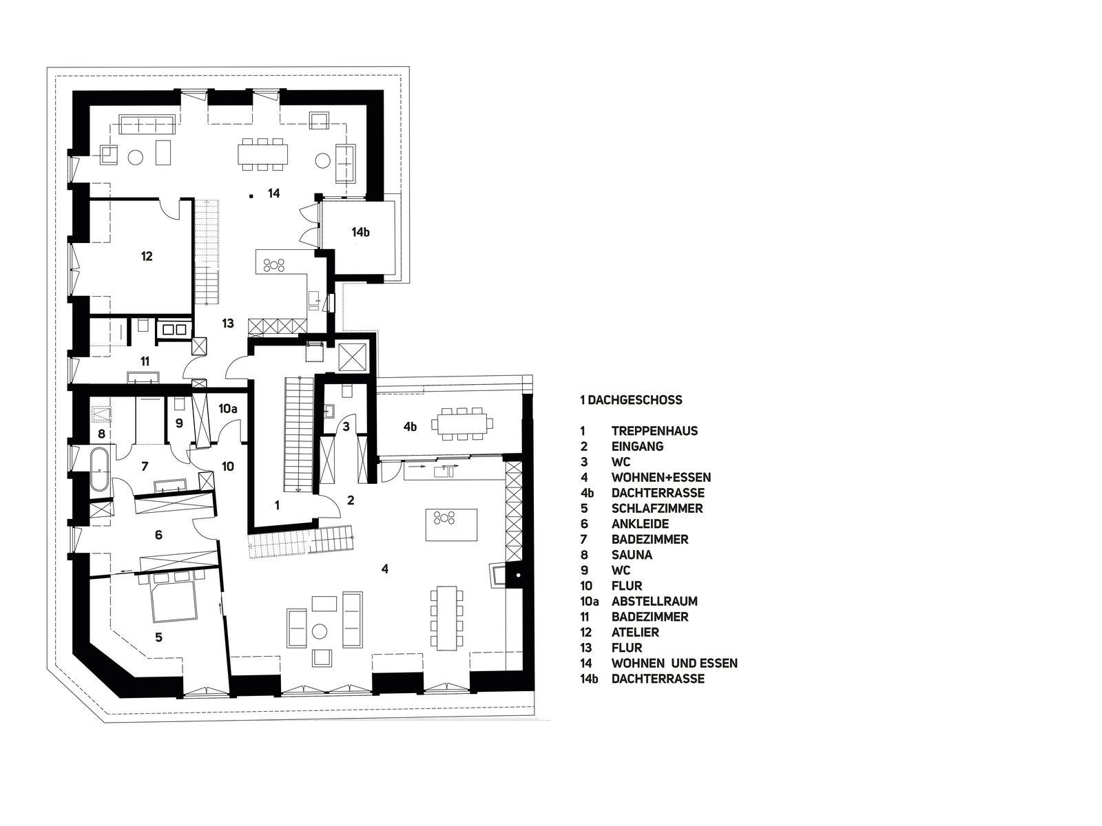
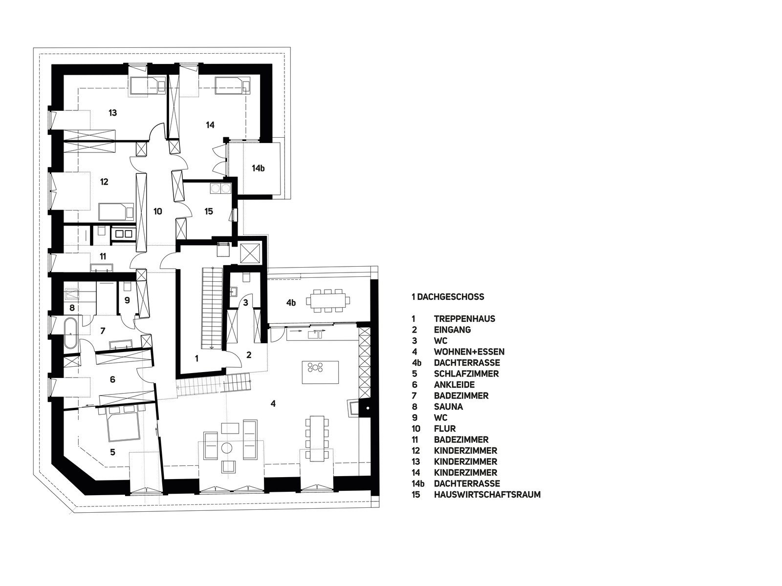
Dachausbau Schwabing   Um- und Ausbau eines Dachgeschosses mit Errichtung neuer Dachgauben

20363
Bauherr Privat
Standort MünchenISchwabing
Jahr 2023
Leistungsphasen 1-8
Fotografie m8architekten
Projektnummer 20363

m8architekten

christian winter
mia winter
partmbB

parzivalstraße 25
80804 münchen
t +49.89.321 64 98.40
f +49.89.321 64 98.59 

office@m8architekten.com