Neubau familiengerechter Wohnungen   Städtebau, Wohnungsbau, familienfreundliche Gestaltung

11193
Programm Städtebau, Wohnungsbau, familienfreundliche Gestaltung
Projektname Wettbewerb Ingolstadt
Bauherr GWG Gemeinnützige Wohnungsbau Gesellschaft
Standort Ingolstadt, Regensburgerstrasse
Jahr 2011
Status Entwurf und Wirtschaftlichkeitsberechnung
Architektenteam m8architekten
Projektnummer 11193

Städtebau und Freiräume

Drei kompakte Baukörper schaffen in einer freien Anordnung ein Gefüge großzügig dimensionierter und locker miteinander verbundener Freiräume. Die Baukörperstellung und die gegenüber der angrenzenden Bebauung reduzierte Höhenentwicklung folgen der Vorstellung eines durch die umgebende Bebauung definierten Gesamtraumes, der sich vielfältig mit der Donaulandschaft verzahnt. Auf eindeutige Hierarchien von Baukörpern und Freiräumen wird dabei bewusst verzichtet. Der Entwurf schafft weiche Übergänge zwischen den verschiedenen Freiräumen und verzahnt das neue Quartier auf unterschiedlich erlebbare Weise visuell mit den Donauauen.

Wege und Freiflächen

Ein Wegenetz, das der orthogonalen Struktur der drei neuen Gebäude folgt, verbindet diese mit der geschwungenen Randbebauung. Dem Wegenetz eingeschrieben finden sich neben reinen Grün- und Pflanzflächen unterschiedlich nutzbare Frei- und Spielflächen für Bewohner aller Altersstufen, die in ihrer Gesamtheit als ein „Garten für alle Nachbarn“ begriffen werden. Wegenetz und Freiflächen schaffen vielschichtige Bezüge und verzichten ebenso wie die Baukörper auf klare Hierarchien.

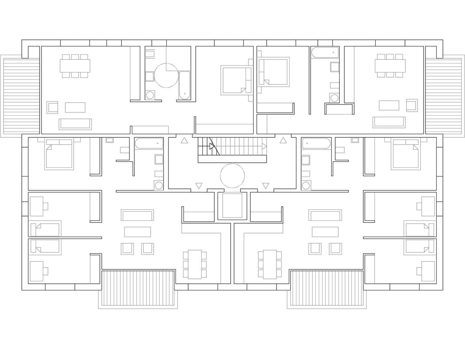
Häuser und Wohnungen

Die als wirtschaftliche Vierspänner organisierten Häuser besitzen ein Hochparterre, dessen private Freibereiche mit Mauern und Hecken von den angrenzenden Freiflächen und wegen abgesetzt sind. Die barrierefreie Erschließung aller Wohnungen einschließlich Untergeschoß und Tiefgarage ist generell durch Aufzüge gegeben. Die großzügigen Hauseingangsbereiche bieten ausreichend Platz für Kinderwägen, Rollstühle etc. ebenfalls großzügig wirken die durch Oberlichter belichteten Treppenhäuser mit geradläufigen Treppen.

Innerhalb der Wohnungen werden reine Flure so weit wie möglich reduziert. Die Wohnräume dienen häufig gleichzeitig zur Erschließung angrenzender Individualräume. Dadurch wird trotz begrenzter Gesamtfläche der Wohnungen räumliche Großzügigkeit erreicht. Unter diesem Aspekt und dem der Familienfreundlichkeit sind Wohn-, Koch- und Essbereiche in allen Wohnungen jeweils zu einem zusammenhängenden Bereich zusammengefasst. Alle Wohnungen besitzen Balkone oder ebenerdige Terrassen mit gut nutzbaren Abmessungen.

m8architekten

christian winter
mia winter
partmbB

parzivalstraße 25
80804 münchen
t +49.89.321 64 98.40
f +49.89.321 64 98.59 

office@m8architekten.com