m8architekten
christian winter
mia winter
partmbB
parzivalstraße 25
80804 münchen
t +49.89.321 64 98.40
f +49.89.321 64 98.59
| Programm | Bürogebäude, Hochhausbau |
|---|---|
| Bauherr | Bayerische Immobilien AG |
| Standort | München, Altstadt |
| Jahr | 2002 |
| Konstruktion | Stahlbeton-Skelettbau |
| Grundstücksfläche | 6308m² |
| Grundfläche | 3385m² |
| Geschossfläche | 20500m² |
| Architektenteam | Projektleitung Christian Winter bei Hilmer Sattler Albrecht |
| Fotografie | Stefan Müller |
| Projektnummer | 0204 |
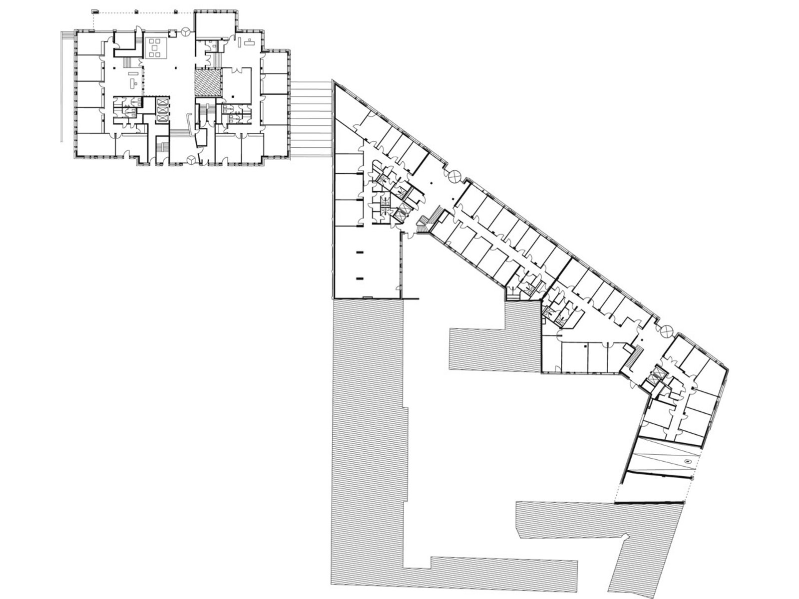
Ort
Das Bürogebäude liegt nahe dem Zentrum Münchens in unmittelbarer Nähe der Residenz. Die stadträumliche Fassung des Altstadtrings ist das übergeordnete Thema des Entwurfs. Im östlichen Bereich des Karl-Scharnagl-Rings wird die vorhandene Blockstruktur ergänzt und so eine Raumkante zu diesem ausgebildet.
Entwurf
Die plastisch gegliederte Ausformung des solitären Baukörpers nimmt durch das Mittel der Stafflung die Geometrie der Straßenkrümmung auf und stellt sich durch leichte, bewusste Asymmetrien frei und zwanglos in den Raum. Beide Gebäude (Solitär und Blockergänzung) sind mit Terrakottasteinen verkleidet, deren heller Farbton sich deutlich von der Bebauung der Maximilianstraße absetzt. Sie zeigen trotz hohen Glasanteils architektonische Masse und stehen bewusst im Gegensatz zur benachbarten Glas- und Blecharchitektur. Durch Kastenfenster (außen Metall, innen Holz) ist der Lärmschutz gewährleistet. Zudem wird der Energiehaushalt des Gebäudes optimiert. Der translozierte Sonnenschutz liegt im Zwischenraum der Kastenfenster. (Hilmer Sattler Albrecht)
m8architekten
christian winter
mia winter
partmbB
parzivalstraße 25
80804 münchen
t +49.89.321 64 98.40
f +49.89.321 64 98.59