m8architekten
christian winter
mia winter
partmbB
parzivalstraße 25
80804 münchen
t +49.89.321 64 98.40
f +49.89.321 64 98.59
| Programm | Verwaltungsbau mit Bürgerzentrum |
|---|---|
| Projektname | Bürgerzentrum |
| Bauherr | Stadt Regensburg |
| Standort | Regensburg |
| Jahr | 2002 |
| Status | Entwurf |
| Leistungsphasen | Wettbewerb |
| Architektenteam | Christian Winter mit Andreas Schindhelm |
| Projektnummer | 0203 |
Die Bebauung der drei Planungsgebiete leitet in ihrem Maßstab von der geschlossenen Straßenraumbebauung des Minoritenweges in die kleinmaßstäbige und heterogene Bebauung des Quartiersinneren über.
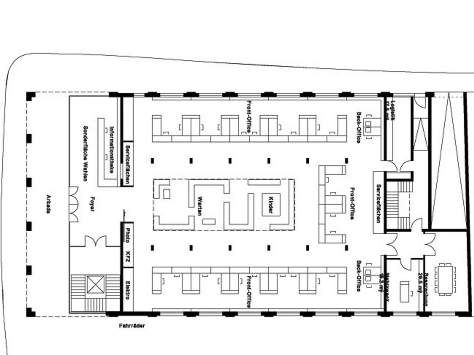
Blockbebauung mit Innenhof – Thema der Regensburger Altstadt. Aus dem Volumen wird ein Innenhof geschnitten, der sich als vertikaler, lichtspendender Raum durch das Gebäude zieht. er wirkt als zentrales räumliches Element des Bürgerbüros. Der offene, transparente Charakter des Erdgeschosses wird so auch in den Büroeinheiten der oberen Geschoße ablesbar.
Das Bürgerbüro wird über den Minoritenweg erschlossen. Die Arkade im Erdgeschoß schafft einer Erweiterung des öffentlichen stadtraumes als Vorbereich für das Bürgerzentrum. Über die Arkade gelangt man in die zweite Schicht, das offene raum hoch verglaste Foyer mit Informationstheke und Treppenraum. Von hier betritt man die offene Halle des Bürgerbüros. im Zugangsbereich sind Serviceflächen (Passbildautomat, Kfz, etc.), Schreibbereichen und Infoflächen angeordnet. Die Arbeits- und Beratungsplätze sind u-förmig entlang der äußeren Raumschicht gruppiert. die klare Zonierung von Publikumsbereich und Bürobereich erlaubt einen reibungslosen Ablauf. Der rückwärtige Bereich des Bürgerbüros wird vom Back Office und Kopierer, Drucker, etc. abgeschlossen. Logistikraum, Büro- und Besprechungsraum sind in einer anschließenden Raumschicht angeordnet. Die als Lounge formulierte Wartezone liegt im zentralen Innenhof mit kurzen Wegen und Blickbeziehung zu den Arbeitsplätzen. die Kinderspielzone ist in diesen Bereich integriert. Die Schicht der Stützen entlang des Atriums schafft als zusätzlicher Filter die notwendige räumliche Distanz zwischen warte- und Beratungszone. Große Fensterelemente in der Fassade, sowie Öffnungen in der Dachverglasung des Innenhofes ermöglichen eine natürliche Belichtung und Belüftung der Arbeitsplätze.
m8architekten
christian winter
mia winter
partmbB
parzivalstraße 25
80804 münchen
t +49.89.321 64 98.40
f +49.89.321 64 98.59