m8architekten
christian winter
mia winter
partmbB
parzivalstraße 25
80804 münchen
t +49.89.321 64 98.40
f +49.89.321 64 98.59
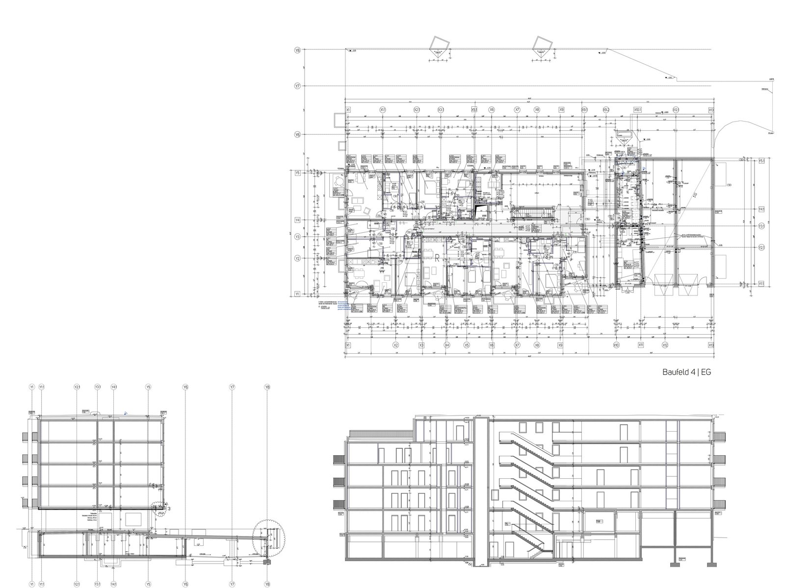
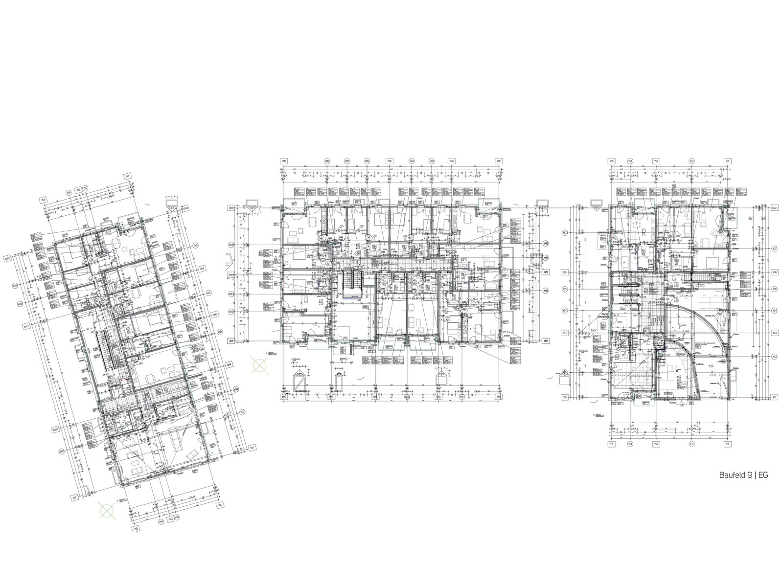
| Programm | 104 WE in vier Gebäuden auf 2 Baufeldern inkl. Tiefgaragen | |
|---|---|---|
| Bauherr | Progeno Wohnungsgenossenschaft | |
| Standort | Freiham | München |
| Jahr | 2022 | |
| Status | realisiert | |
| Leistungsphasen | 2-8 | |
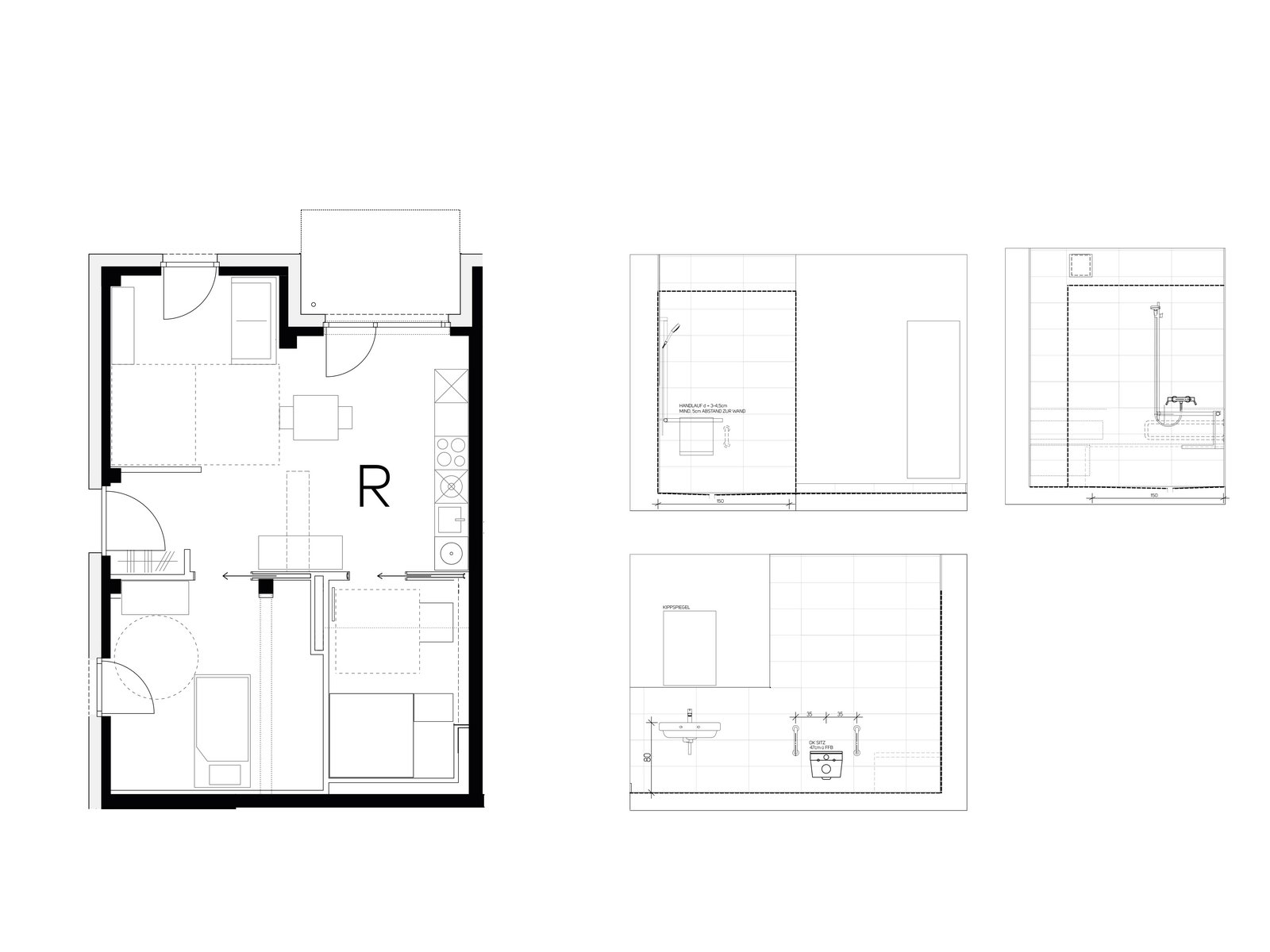
| Konstruktion | Holz-Hybrid-Bauweise | |
| Architektenteam | Anna Gal, Mia Winter, Christian Winter, Alena Seuss, Sebastian Stein | |
| Fotografie | Florian Holzherr, m8architekten | |
| Projektsteuerung | GAPP Architekten | |
| GU | GEIGER Schlüsselfertigbau | |
| Entwurf | SCHANKULA Architekten | |
| Werkplanung & Innenausbau | m8architekten | |
| Statik | Nowu & Zorn ZT | |
| Holzbau | Lignoalp DAMIANI-HOLZ | |
| Elektro | Senninger Elektroplanung | |
| Lichtplanung | PROLICHT Light Solution Center | |
| Bauphysik | Kurz & Fischer Beratende Ingenieure | |
| Landschaftsarchitekten | Terrabiota Landschaftsarchitekten |
m8architekten
christian winter
mia winter
partmbB
parzivalstraße 25
80804 münchen
t +49.89.321 64 98.40
f +49.89.321 64 98.59