m8architekten
christian winter
mia winter
partmbB
parzivalstraße 25
80804 münchen
t +49.89.321 64 98.40
f +49.89.321 64 98.59
| Programm | Villa, Neubau |
|---|---|
| Projektname | Haus Hut |
| Bauherr | Privat |
| Standort | Nürnberg, Rückersdorf |
| Jahr | 2001 |
| Leistungsphasen | Entwurf |
| Konstruktion | Massivbauweise |
| Projektnummer | 0101 |
Das private Wohnhaus liegt am Waldrand in einem locker bebauten Einfamilienhausviertel. Der Bebauungsplan sieht eine Erdgeschossbebauung mit ausgebautem Dach vor.
Der Baukörper erscheint als kompaktes Volumen. Das steil geneigte, große Walmdach ist unmittelbar auf die Wand aufgesetzt. So entsteht kein Dachüberstand, der Baukörper wird als ein zusammengehöriges Volumen erlebbar. Dachhaut und Außenwand bestehen aus dem gleichen Stein. Die Fenster sind als präzise großflächige Öffnungen gesetzt und verknüpfen Innen- und Außenraum.
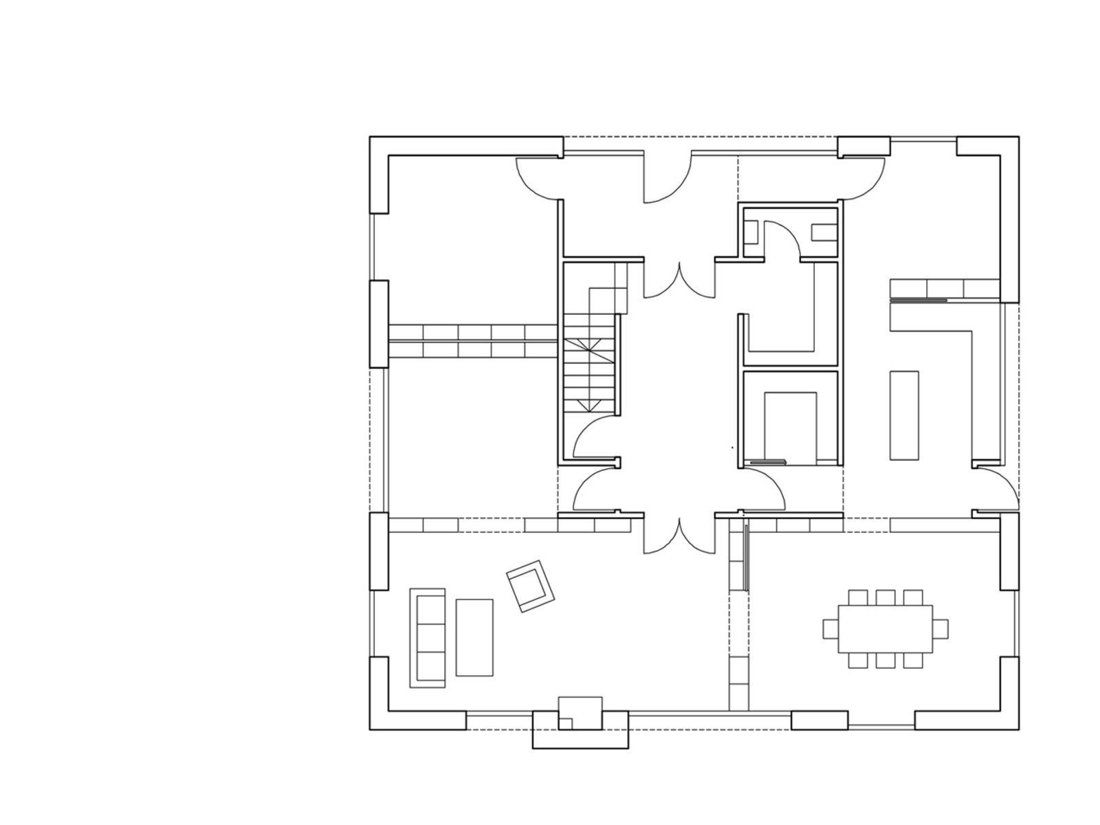
Alle Räume sind um einen zentralen Treppenraum organisiert. Verschiedene Nutzungsvarianten des Erdgeschoßgrundrisses sind so denkbar (separates Büro).
Zweigeschossige Raumbereiche machen die geneigten Flächen des Zeltdaches auch im Erdgeschoß erlebbar. Der Raumkörper ist außen und innen gleichermaßen präsent.
m8architekten
christian winter
mia winter
partmbB
parzivalstraße 25
80804 münchen
t +49.89.321 64 98.40
f +49.89.321 64 98.59