m8architekten
christian winter
mia winter
partmbB
parzivalstraße 25
80804 münchen
t +49.89.321 64 98.40
f +49.89.321 64 98.59
| Programm | Büro, Sanierung und Umstrukturierung |
|---|---|
| Bauherr | Grimm Immobilien |
| Standort | München, Innenstadt |
| Status | realisiert |
| Bürofläche | 400m² |
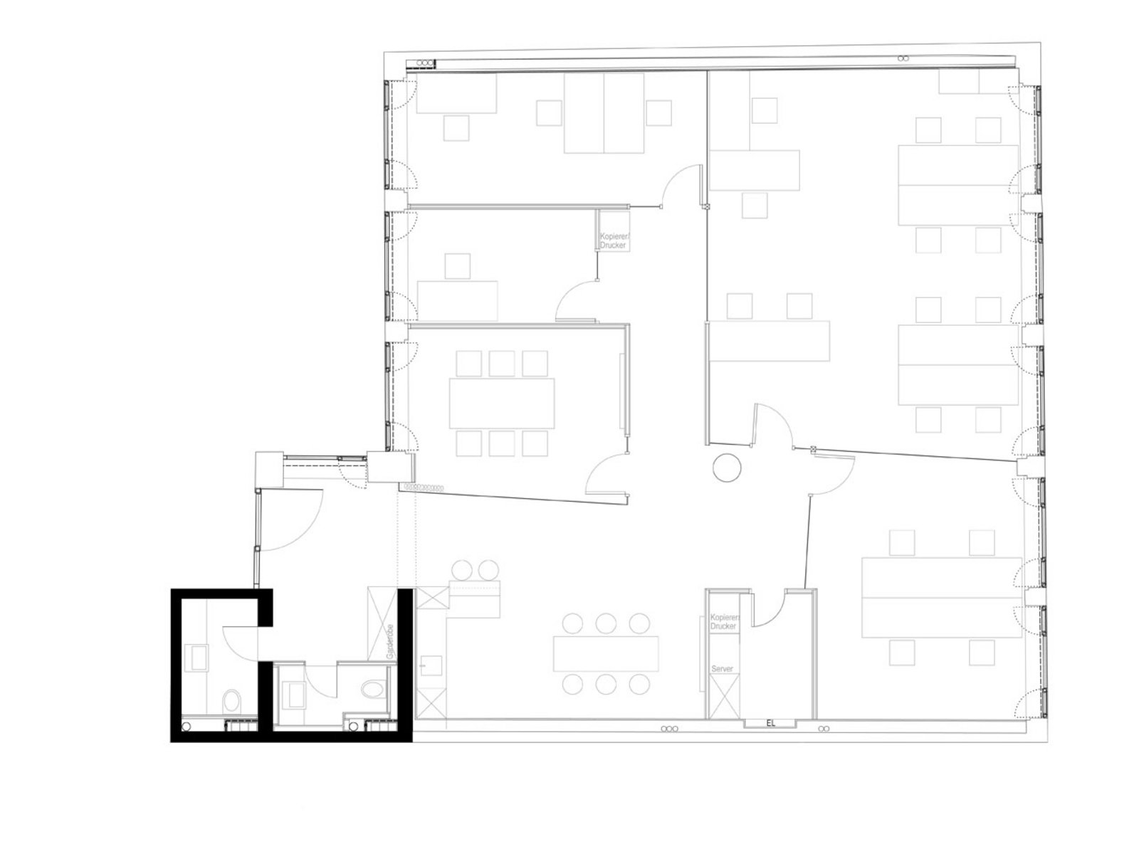
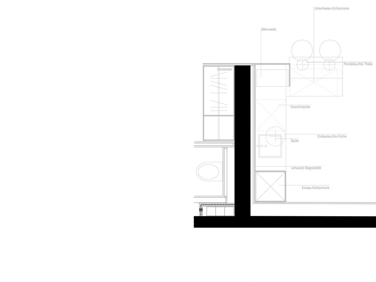
Seit 2011 gestalten m8architekten immer wieder verschiedene Projekte in der Sonnenstraße 1. Dabei handelt es sich überwiegend um Büroumstrukturierungen bzw. die Neuordnung von Grundrissen - immer unter dem Aspekt der Modernisierung.
m8architekten
christian winter
mia winter
partmbB
parzivalstraße 25
80804 münchen
t +49.89.321 64 98.40
f +49.89.321 64 98.59