m8architekten
christian winter
mia winter
partmbB
parzivalstraße 25
80804 münchen
t +49.89.321 64 98.40
f +49.89.321 64 98.59
| Programm | u.a. Förderung von Baumaßnahmen zur Barrierefreiheit | |
|---|---|---|
| Projektname | Kirche Tirschenreuth | |
| Bauherr | EVANG -LUTH. Kirchengemeinde | |
| Standort | Tirschenreuth Oberpfalz | |
| Jahr | 2020 | |
| Status | in Ausführung | |
| Leistungsphasen | 1-2 |
Die evang.-luth. Kirchengemeinde Tirschenreuth hat derzeit ca. 900 Mitglieder und möchte ihre Türen weiteren Einwohnern der Stadt öffnen. Die Bausubstanz des Gebäudes ist augenscheinlich in gutem Zustand. Die ursprüngliche Gaststätte zur Turnhalle mit Tanzsaal wurde um die Jahrhundertwende in die Erlöserkirche umgebaut. 1964 erhielt sie den markanten Kirchturm an der Äußeren Regensburger Straße. 2004 wurde der Dachstuhl überarbeitet. Die Kirche ist kein Baudenkmal. Eine Modernisierung ist unter anderem wegen der veralteten, schon ausgefallenen und notdürftig reparierten Heizung nötig, für die keine Ersatzteile mehr erhältlich sind. Derzeit dienen Radiatoren entlang der Außenwände zur Temperierung des Kirchenraums und zusätzlich wurde eine elektronische Bankheizung eingebaut. Ein weiteres Thema ist die Barrierefreiheit. Der Haupteingang wird durch eine Stufe eingeschränkt, zum Hof sind es gleich mehrere Stufen und eine schmale Tür. Toiletten gibt es nur im UG. Diese sind nicht barrierefrei erreichbar und eng.
Es besteht der Wunsch der Gemeinde nach Modernisierung, die zugleich auch eine flexiblere und offenere Nutzung der Räumlichkeiten bietet um ein vielseitiges Angebot für die Gemeinde und ihre Nachbarn zu schaffen. Ein inklusives Gemeindezentrum als Ort der Begegnung und Kultur mit offenen Türen für jedermann soll entstehen.
Energetische Sanierung Grundlegende Maßnahme ist der Einbau einer neuen Heizzentrale mit Pelletofen, die das gesamte Kirchenareal, inklusive Kindergarten und Pfarrhaus, versorgt. Um die Kirchenräume einer höheren Attraktivität zuzuführen, soll eine energiesparende Fußbodenheizung eingebaut werden.
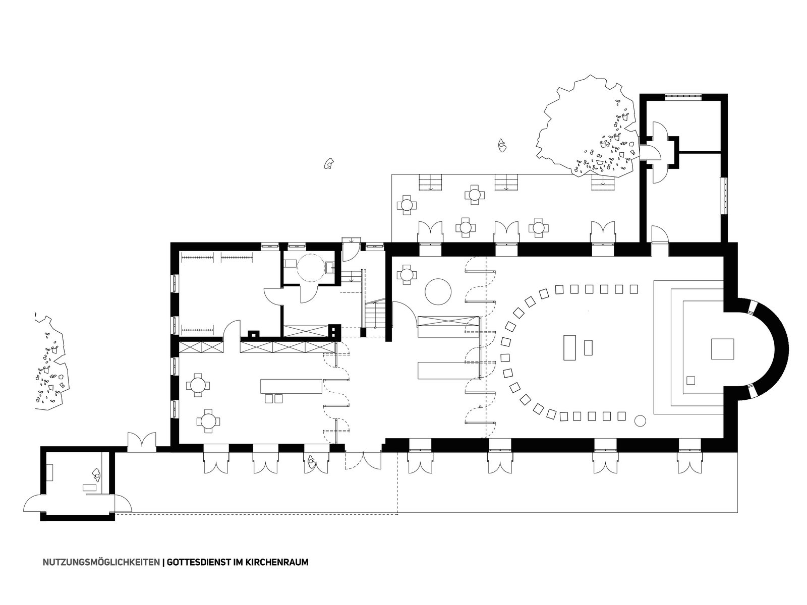
Umgestaltung Kirchenraum Im Zuge der energetischen Sanierung wird der gesamte Boden im EG erneuert und gedämmt. Hierfür weichen die Kirchenbänke und werden zur flexibleren Nutzung durch Stühle ersetzt. Die Altarstufen werden zu einem größeren Podium erweitert, auf dem eine Band oder Theatergruppe ausreichend Platz finden kann. Statt der Kanzel steht dann ein flexibles Pult auch für weltliche Vorträge bereit. Der enge Eingangsflur wird zu einem breiteren Foyer mit vierflügligen Türanlagen zu Kirchraum und Gemeinderaum erweitert. Durch diese Maßnahme ist auch der Gemeinderaum barrierefrei erreichbar und die Räume können für Ausstellungen und mehr zusammenhängend genutzt werden.
Neuordnung Brandschutzkonzept Durch das fließende Raumkonzept des Gemeindezentrums entstehen neue Anforderungen an den Brandschutz. Um diesen gerecht zu werden sind zwischen Foyer und Treppenhaus, sowie zur Küche und zum barrierefreien WC Brandschutztüren konzipiert.
Barrierefreie Gestaltung des Gemeindezentrums Der Haupteingang wird durch eine leichte Rampe mit Handlauf barrierefrei gestaltet. Für den barrierefreien Zugang zum Hof wird an den Kirchraum eine Rampe angebaut. Der neue Ausgang dient dem Multifunktionsraum auch als zweiter Fluchtweg. Die WC-Anlage im UG wird durch ein barrierefreies WC im EG ergänzt. Im Zuge dessen wird auch die Küche vergrößert um zukünftig Kirchenkaffees, Obdachlosen-Vesper oder ähnliches veranstalten zu können. Ziel ist eine barrierefreie Küche um alle Interessenten in die Arbeit miteinzubeziehen. Durch den großen Durchbruch zwischen Küche und Gemeinderaum könne die Räume zu einem Kontinuum zusammengeschaltet werden. Der Durchgang kann durch flexible Thekenelemente verstellt werden. Diese können beispielsweise auch in den Multifunktionsraum geschoben und dort als Empfang oder Bar genutzt werden. Zusätzlich sollen kleinere Maßnahmen wie eine Induktionsschleife, ein akustisch wirksamer Vorhang und kleine taktile und visuelle Hilfen umgesetzt werden.
Verankerung in der Stadt Um den Eingangsbereich heller und einladender zu gestalten wird das Vordach durch ein Glasdach ersetzt. Von dort gelangt der Besucher nun in ein helles offenes Foyer. Für eine ergänzende Aufwertung der Eingangssituation durch eine Kapelle im Kampanile suchen wir noch einen Spender. Diese soll allen Bewohnern und Besuchern der Stadt Tirschenreuth ganztägig als Ort der Stille zur Verfügung stehen.
Die evangelische Kirchengemeinde in Tirschenreuth versucht sich so den heutigen Anforderungen und Herausforderungen zu stellen und ihren Beitrag zu leisten, bezüglich Umweltschutz, Integration, Bildung…
m8architekten
christian winter
mia winter
partmbB
parzivalstraße 25
80804 münchen
t +49.89.321 64 98.40
f +49.89.321 64 98.59