Live Work - Our Chance to Change   Arbeitsraum für kreative Projekte und Ideen in Schwabing

Wohnen und arbeiten unter einem Dach

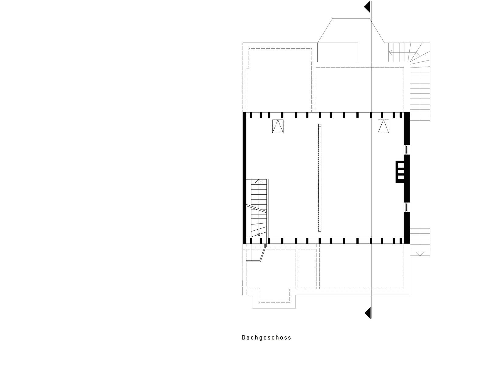
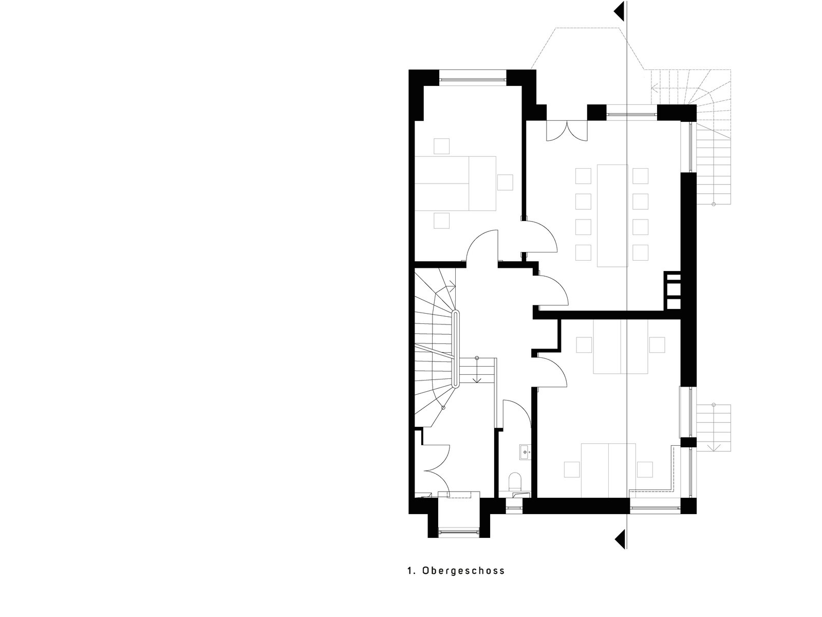
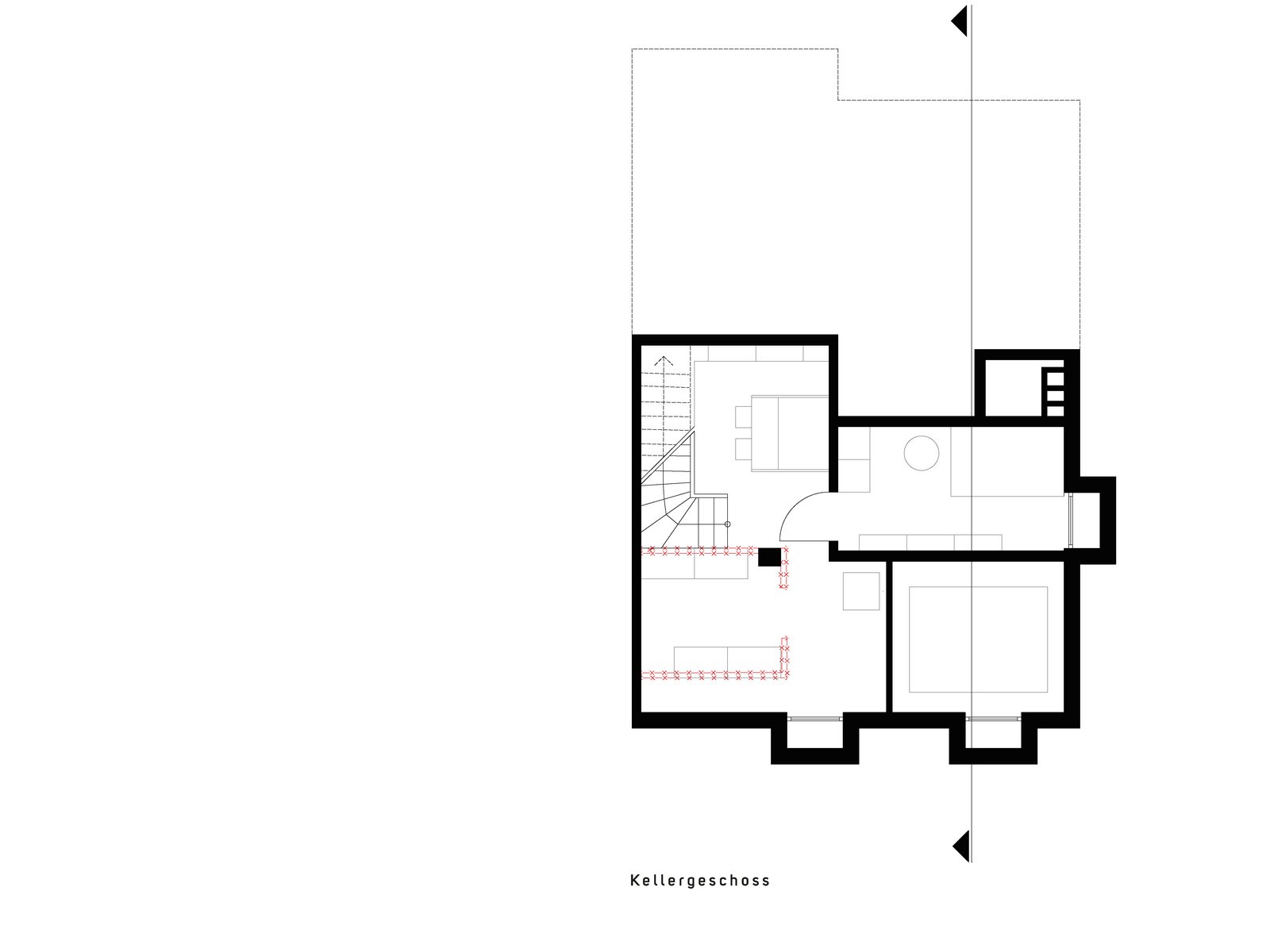
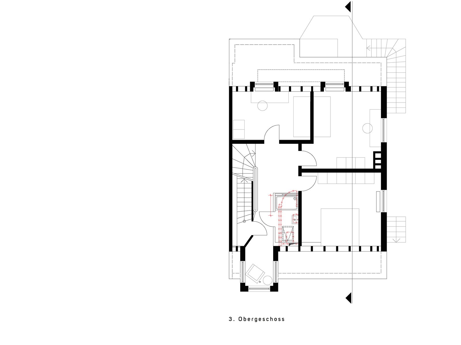
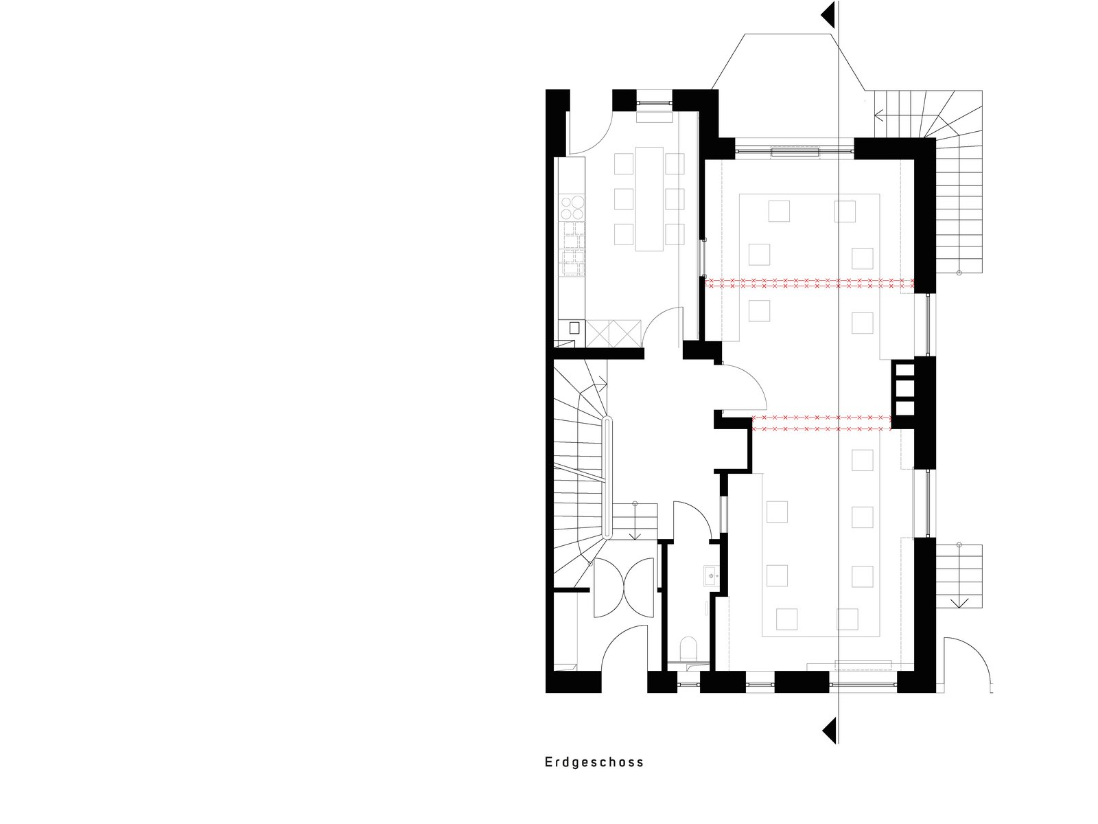
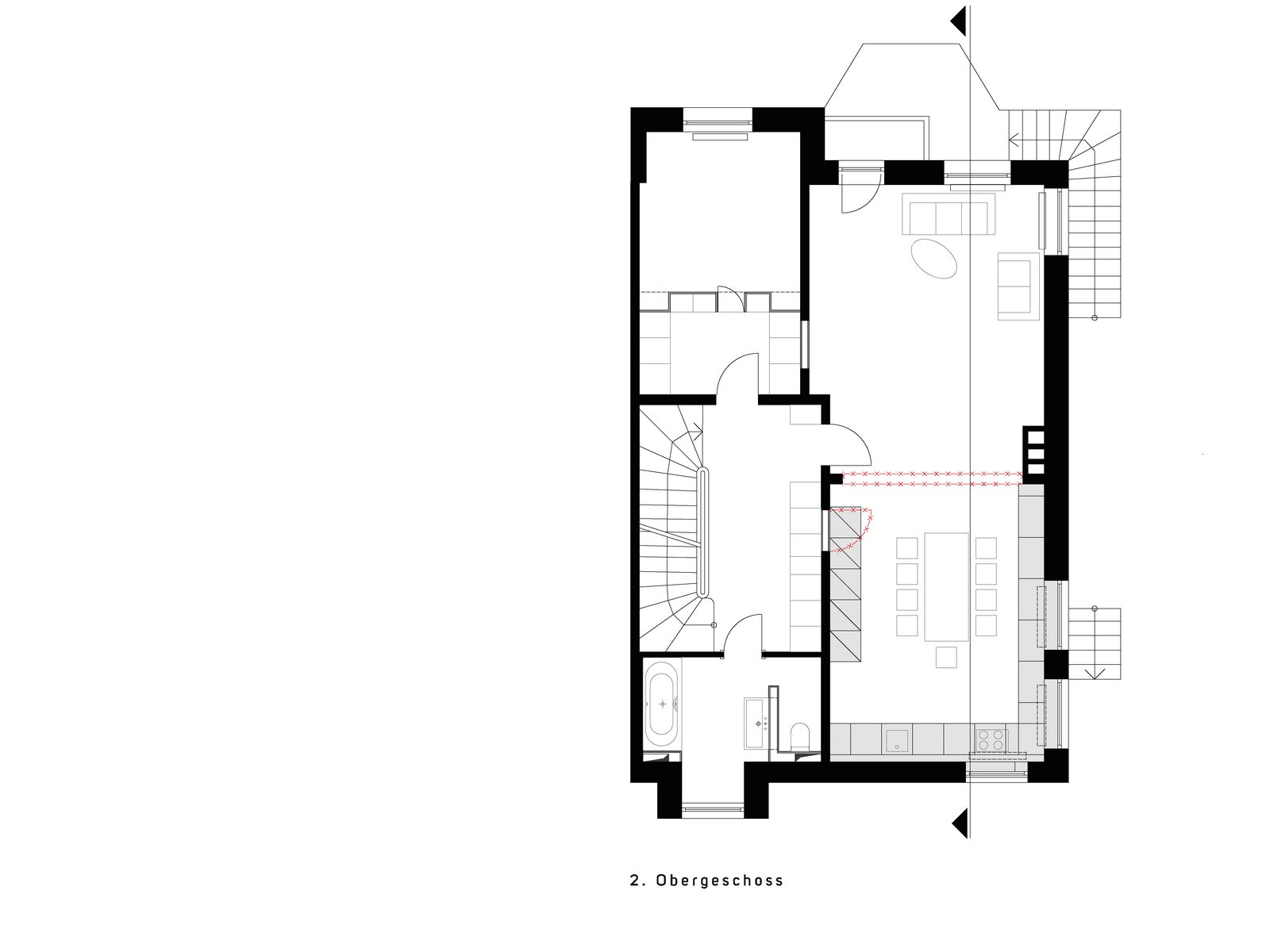
Umbau eines Einfamilien-Reiheneckhauses zum Büro- und Wohnhaus

Aufgaben und Ziele

Im Zentrum steht die Überzeugunng, dass jeder Mensch die Freiheit hat, sein Leben selbst zu gestalten und den Mut behält, es selbst in die Hand zu nehmen. Für uns gilt, dass Architektur das Leben im positiven Sinn aushalten muss. Unser WORKspace steht für Kreativität, Innovation, Erfahrung und Zusammenarbeit. Wir achten auf Nachhaltigkeit, Wirtschaftlichkeit und Ästhetik. Die Optimierung von Lebens- und Arbeitsabläufen ist uns wichtig um Raum für „Qualitätszeit“ frei zu machen.

Die Gesellschaft ändert sich, und das verlangt auch neue Ideen in der Architektur, sowohl im Zusammenleben als auch im Zusammenarbeiten in der Stadt. In dem großbürgerlichen 380m² großen Reiheneckhaus aus den 20iger Jahren wurden die ehemaligen Bedienstetenzimmer einschließlich deren Arbeitsräume (Küche, Bügelzimmer und Waschküche) und das Hochparterre einer zeitgemäßen Nutzung geöffnet werden. Wie auch früher, soll in dem Haus gewohnt und gearbeitet werden, jedoch unter der Maßgabe, dass die Bewohner dort selbst ihren Lebensunterhalt verdienen bzw. einen Beitrag zum Stadtleben in unsere Gesellschaft leisten und dort einen kreativen, lebendigen Stadtbaustein schaffen.

Die geplante Wohn-und Arbeitsform ist die Zukunft der Stadt:

  • der zeitliche Gewinn ist enorm, in unserem Fall in der Regel 2 Stunden pro Person
  • das Wegfallen der Arbeitswege spart C02 und verkleinert dadurch den ökologischen Fußabdruck
  • die Straßen werden entlastet und die durch den Verkehr entstehende Aufheizung der Stadt gemindert
  • die Verknüpfung von Arbeiten und Wohnen fördert die komplexen zwischenmenschlichen Beziehungen in der direkten Umgebung
  • es kann eher ein qualitativer Stadt-Mikrokosmos entstehen.

Wir, als selbstständige Architekten mit unseren 6 Kindern (3 davon noch zuhause) freuen uns, ein offenes Haus zu führen. Wenn wir Arbeiten und Wohnen zusammenführen, können wir unsere große Familie und die Arbeit viel besser in Einklang bringen. Eine Trennung der Bereiche für Arbeit und Wohnen ist nicht erwünscht, da dies nicht unserer Arbeitsweise, unserer Architektur und unserer Lebenseinstellung entspricht - die räumlichen Übergänge zwischen den bislang eigentlich getrennen Welten sollen fliesender gestaltet werden.

m8architekten

christian winter
mia winter
partmbB

parzivalstraße 25
80804 münchen
t +49.89.321 64 98.40
f +49.89.321 64 98.59 

office@m8architekten.com