m8architekten
christian winter
mia winter
partmbB
parzivalstraße 25
80804 münchen
t +49.89.321 64 98.40
f +49.89.321 64 98.59
| Standort | Kulmbach |
|---|---|
| Jahr | 2018 |
| Architektenteam | m8architekten |
| Projektnummer | 17322 |
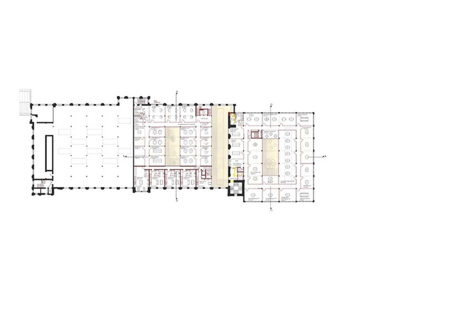
Städtebauliches Konzept:
Das neue Behörden und Verwaltungszentrum liegt zusammen mit den geplanten Universitätsgebäuden direkt am historischen Kern Kulmbachs und am Bahnhof im ehemaligen Industriegebiet. Das Quartier ist geprägt von den großmaßstäblichen Setzungen der Bauten der alten Spinnerei und der Brauerei. Die neuen, nicht minder großen, Nutzungen eignen sich gut, um Kulmbach einen neuen städtebaulichen Impuls zu geben.
Die vorgegebene große Hallenstruktur wird neu interpretiert. Das Gebäude erhält drei Zugänge/ Adressen und eine Passage in Nord- Südrichtung. Dadurch wird der Baukörper in die Wegenetze der bestehenden Stadt eingebunden und die zurzeit verödete Nordfassade wird zu einem neuen Gesicht der Stadt und bildet den Brückenschlag zum künftigen Universitätsgelände Kulmbach. An der Ostfassade mit dem vorgelagerten Platz ist der Eingang zum Veranstaltungs- und Vorlesungssaal situiert. An der Südseite des Spinnereigebäudes befinden sich die Wohnungen mit einem eigenen Treppenhaus.
Freiraumkonzept:
Die zentrale, stadträumliche Lage des Areals zwischen Bahnhof und Altstadt manifestiert sich in einer urbanen und offenen Ausgestaltung des Platzes vor dem Kopfbau der Spinnerei. Er wird als Bühne des öffentlichen Lebens interpretiert und bildet die Drehscheibe zwischen Jugendtreff, Einkaufszentrum, Kultur und Konzertsaal (alte Turbinengebäude) und der neuen Universität.
Eine streifenartige Gliederung sowie weitgezogene Stufen und Rampen vermitteln zwischen dem Höhenniveau der umliegenden Straßen und dem höhergelegenen Eingangsniveau des Kopfgebäudes.
Ein Ballspielplatz auf dem Parkdeck gewährleistet eine weitere Belebung des öffentlichen Raumes. Eine Spiel- u. Sportnutzung hat sich ohnehin bereits auf dem Areal etabliert. An der westlichen Brandwand der Villa wird eine Kletterwand installiert.
Der Fußgängerübergang im Norden vernetzt den neuen Gebäudeeingang und seinen Vorplatz mit dem Bahnhof und in Zukunft auch mit dem neuen Unigelände. Der Aspekt Ernährung und Lebensmittelproduktion wird nun auch im Freiraum thematisiert: Ein Gräsergarten als Intarsie innerhalb der Platzfläche zeigt ein großes Spektrum an Nutz- u. Ziergräsern. Im Wasserbecken könnte beispielsweise auch Reis angebaut werden. Die Anlage eines Lehr- u. Versuchsgartens auf dem Dachgeschoss unterstützt diese Idee zusätzlich.
Denkmalkonzept I Tragwerk I thermische Hülle:
Die prägenden Volumina der Produktionsgebäude werden erhalten. Da eine wirtschaftliche Instandsetzung des Tragwerks nicht mehr möglich ist, wird das Gebäude entkernt und neu von der Fassade entkoppelt wiederaufgebaut. Die alte Tragstruktur mit den z.T. achteckigen Stützen wird wiederaufgebaut und soll das Gebäude im Inneren prägen. Anbauten und Aufbauten werden entfernt, die ursprünglichen Gebäudekomplexe erhalten. Die Fassadenteilung/ -struktur wird erneuert in Art des Bestandes. Das Gebäude erhält eine innere thermische Hülle mit hinterlüftetem Kastenfenster und Sonnenschutz im Kastenfenster. Das äußere Kastenfenster wird in seinem Erscheinungsbild rekonstruiert.
„Es wird fugenlos weitergebaut.“
Beim Umbau / Neubau wird darauf geachtet die gleiche Materialität und Farbigkeit der bauzeitlichen Struktur aufzugreifen, um ein harmonisches Gesamtbild im Inneren wie im Äußeren zu schaffen. Es wird also fugenlos im Bestand weitergebaut, die Abgrenzung von Neu und Alt wird subtil in Erscheinung treten und hauptsächlich durch die Patina geprägt sein.
Innere Erschließung I Passage:
Zentrales Element des Gebäudes wird die überdachte Passage über die gesamte Gebäudehöhe in Nord- Südrichtung. Dieser Raum bildet die Identität und Adresse der neu geschaffenen Nutzungen. Alle Bereiche der Verwaltung: „Grünes Zentrum“ und die Kontrollbehörde“, VLEX, Versammlungsbereich und auch die Wohnungen werden über diese Passage erschlossen.
„Es bildet sich eine Identität.“
Büroräume:
Die Teilung des Gebäudes durch die Passage und die Setzung der beiden „Lichthöfen“ ermöglicht maximale Flexibilität in der Bürostruktur. Die Räume werden sehr gut belichtet und lassen sich flexibel unterteilen. Sowohl Großraumbüros als auch Einzelbüros sind überall machbar.
Versammlungsbereich I Vorlesungssaal:
Der Versammlungsbereich im Erdgeschoss zwischen der Passage und dem Platz ist das verbindende Element zwischen den Bürgern der Stadt Kulmbach, dem „Grünen Zentrum“ der Behörde und der VLEX. Es soll die Möglichkeit bieten in der Zukunft auch Veranstaltungen der Universität aufzunehmen.
Wohnungen:
Die Wohnungen werden im südlichen mittleren Teil der alten Spinnerei realisiert, mit einem eigenen Treppenhaus übereinander und mit einer Fassade zur Straße /Gasse gegenüber der Villa. Die kleinen Wohnungen auch über die Passage erschlossen können sowohl von Mitarbeitern der Verwaltung als auch extern vermietet werden. Anstatt einer privilegierten Wohnnutzung auf dem Dach werden die Wohnungen zur Gasse zwischen Villa und alter Spinnerei hin orientiert. Der Straßenraum wird aufgewertet und bringt Leben auch sonntags in das Quartier. Die Lage ist dem Bahn- Verkehrslärm abgewandt und ruhig.
Dach:
Auf dem Dach werden größere Aufbauten vermieden, alle Erschließungstreppenhäuser werden auf das Dach geführt und ermöglichen so den Bewohner/ Arbeitern/ Besuchern des Gebäudes auch das Dach zu nutzen. Ein „Dachversuchsgarten mit Gewächshäusern Beeten und Terrassen bietet allen Nutzern einen erweiterten Lebensbereich an.
Barrierefreiheit:
Die Gebäudezugänge an Nord- Ost und Südfassade sind barrierefrei ausgebildet. Alle Geschosse/ Nutzungen sind mit Aufzügen erschlossen.
Haustechnikkonzept:
Die Energieerzeugung basiert auf zwei Säulen Grundlast Heizen und Temperierung/Kühlung
Zur direkten Temperierung und Kühlung wird Grundwasser eingesetzt mit einer Wasser-Wasserwärmepumpe. Die Temperierung erfolgt über eine Fußbodenheizung und eine Bauteiltemperierung. Durch dieses Konzept werden die Anforderungen des EEWG erfüllt.
Spitzenlastabdeckung:
Die Spitzenlast und der Energiebedarf für Hochtemperatursysteme (Lüftung, Warmwasser) wird durch eine Pellets Heizung abgedeckt. Die enormen Raumhöhen dienen als Wärmepuffer, die Fußbodentemperierung sorgt mit ihrem hohen Strahlungsanteil für ein gutes Raumklima. In Räumen mit erhöhten Kühllasten können über Kühlsegel noch gezielt erhöhte Kältelasten zugeführt werden. Im Flurbereich ist eine ausreichend dimensionierte Ringleitung als Vorrüstung zum Anschluss zusätzlicher Kühlsegeln vorgesehen. Durch diese Ringleitung sind jederzeit erhöhte Anforderungen an Kälte zu realisieren. Die Warmwasserbereitung erfolgt im überwiegenden Teil des Gebäudes mit dezentralen elektrischen 5 Liter-Untertischgeräten. Lediglich für die Kernbereiche der Wohnungen wird Warmwasser zentral erzeugt. Um Technikflächen für die Lüftungszentralen zu vermeiden und da eine Aufstellung dieser Anlagen auf dem Dach nicht gewünscht ist, wird die Raumhöhe des Gebäudes genutzt und dezentrale Lüftungsanlagen über den WC Einheiten realisiert. Die Frischluft und Fortluft wird über Dach geführt.
Die Heizungszentrale ist im Untergeschoss untergebracht.
m8architekten
christian winter
mia winter
partmbB
parzivalstraße 25
80804 münchen
t +49.89.321 64 98.40
f +49.89.321 64 98.59