m8architekten
christian winter
mia winter
partmbB
parzivalstraße 25
80804 münchen
t +49.89.321 64 98.40
f +49.89.321 64 98.59
| Programm | Wohnen, Dachausbau, Umbau und Renovierung |
|---|---|
| Bauherr | G.S. Spaten K.G.a.A. |
| Standort | München, Haidhausen |
| Jahr | 2007 |
| Status | realisiert |
| Leistungsphasen | 1-6 |
| Konstruktion | Holzkonstruktion |
| Wohnfläche vorher | 1134m² |
| Wohnfläche nachher | 330m² |
| BGF | 2553m² |
| Architektenteam | Christian Winter mit Andreas Schindhelm und Marina Kayser-Eichberg |
| Fotografie | swa |
| Projektnummer | 0706 |
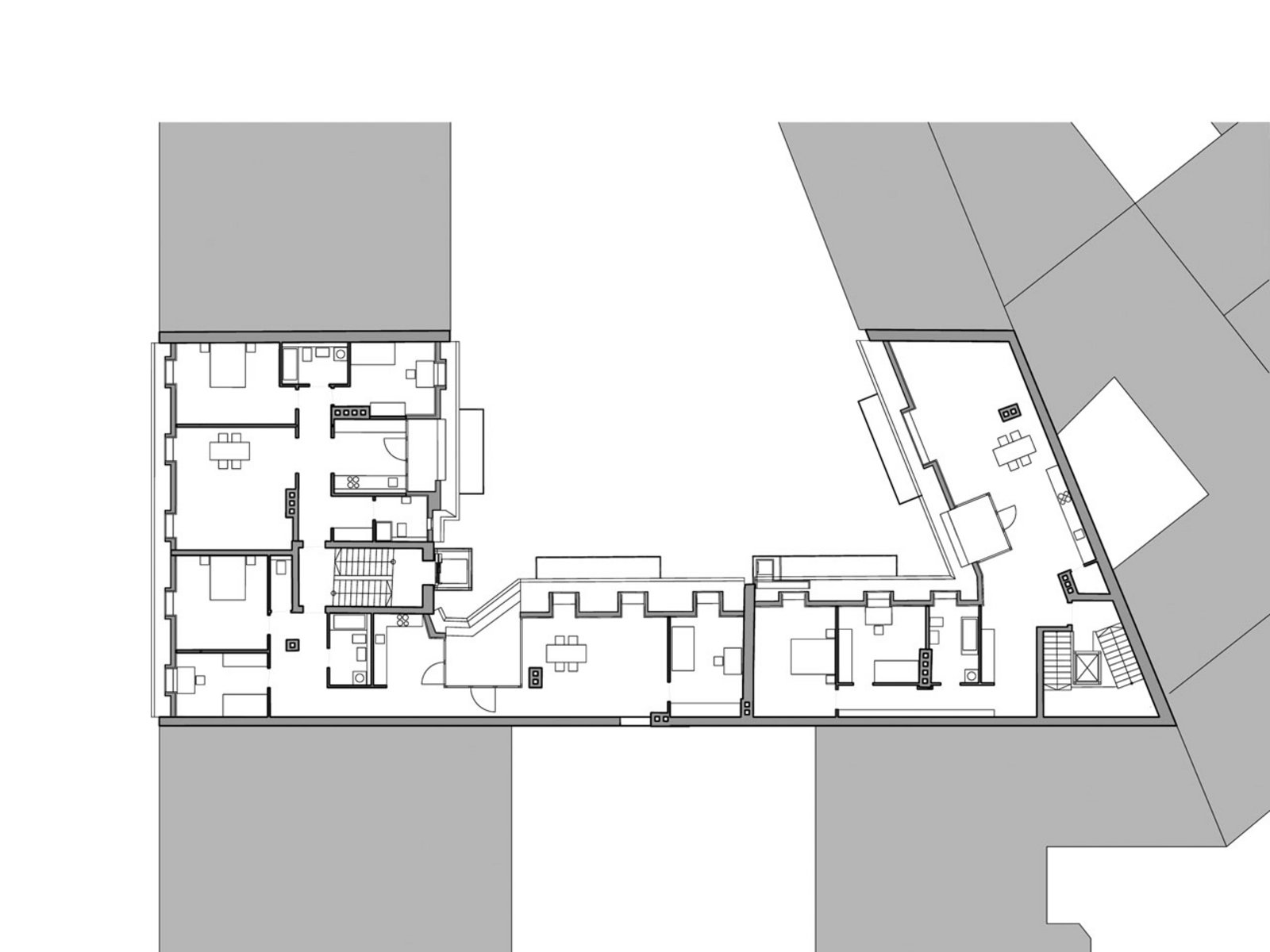
Der Bauherr trat an uns heran mit der Frage wie die ungenügend belichteten, nach Norden hin orientierten Bestandswohnungen verbessert werden könnten. Grundlegender Ansatz war, für die beengte Situation einen möglichst großzügigen Raumeindruck zu schaffen. Die Grundrisse wurden neu geordnet und fließende Übergänge der einzelnen Raumzonen geschaffen. Loggien und Balkone bringen Licht und Sonne in die Wohnungen. Außerdem wurde vorgeschlagen, Fenster in einer bestehenden Brandwand zum Nachbarhinterhof zu konzipieren, sodass die vormals reinen Nordwohnungen Fenster nach Süden erhalten.
m8architekten
christian winter
mia winter
partmbB
parzivalstraße 25
80804 münchen
t +49.89.321 64 98.40
f +49.89.321 64 98.59