m8architekten
christian winter
mia winter
partmbB
parzivalstraße 25
80804 münchen
t +49.89.321 64 98.40
f +49.89.321 64 98.59
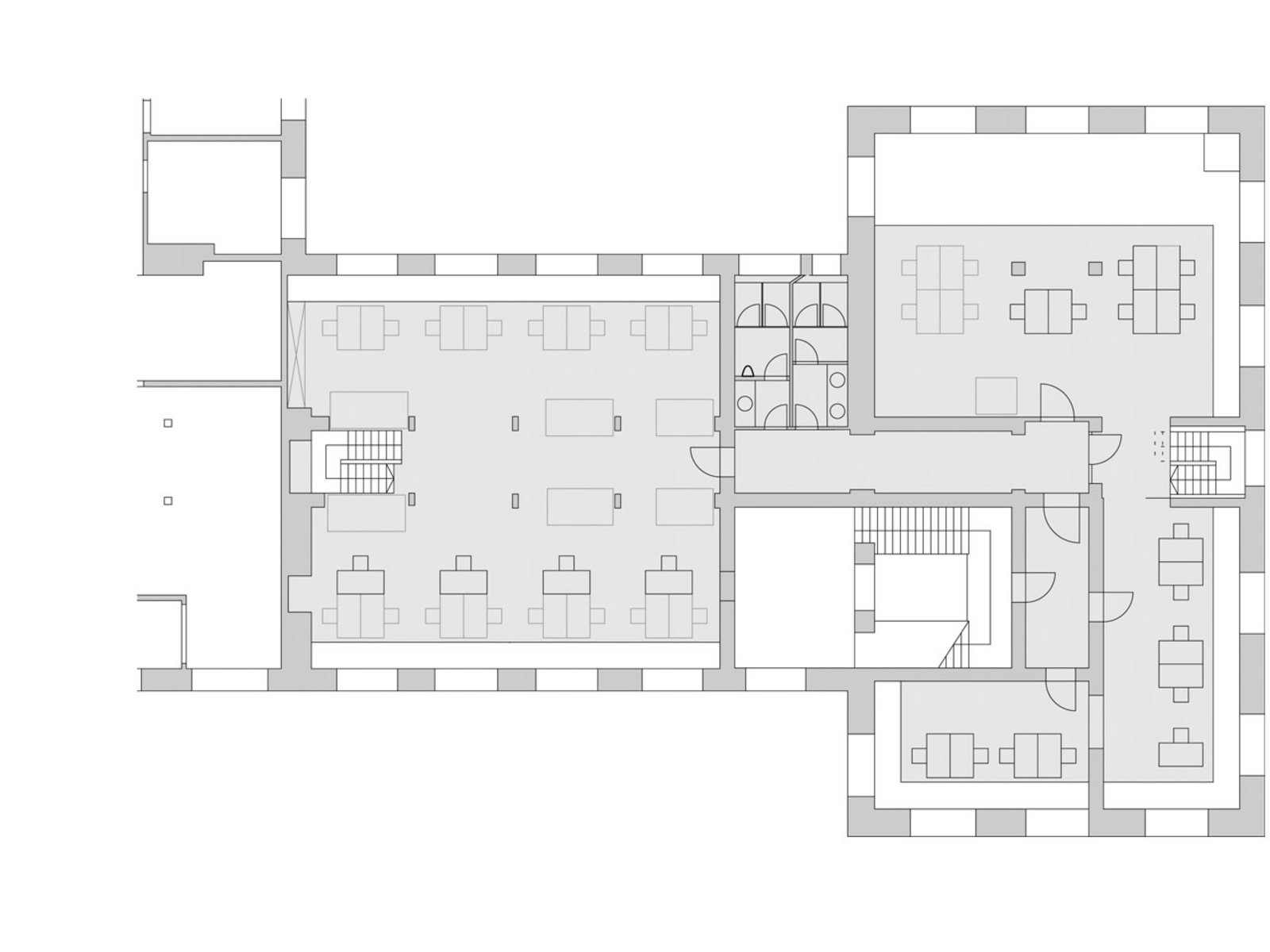
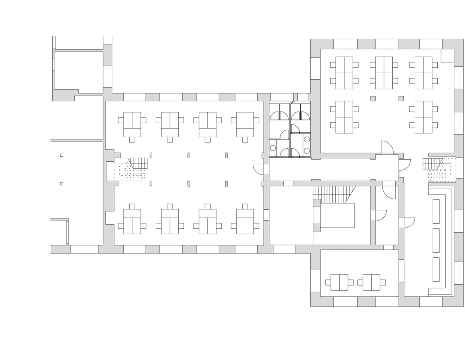
| Programm | Umbau und Renovierung |
|---|---|
| Bauherr | Domplatz 3 und Kornmarkt 10 Verwaltungs GmbH |
| Standort | Regensburg |
| Jahr | 2006 |
| Status | Entwurf |
| Leistungsphasen | 1-3 |
| Konstruktion | Massivbauweise |
| Geschossfläche | 450m² |
| Projektnummer | 0602 |
m8architekten
christian winter
mia winter
partmbB
parzivalstraße 25
80804 münchen
t +49.89.321 64 98.40
f +49.89.321 64 98.59