m8architekten
christian winter
mia winter
partmbB
parzivalstraße 25
80804 münchen
t +49.89.321 64 98.40
f +49.89.321 64 98.59
| Programm | Kirchturm öffnen - mit Leben füllen - Sichtbarkeit herstellen | |
|---|---|---|
| Standort | München, Maxvorstadt | |
| Jahr | 2006 | |
| Status | Gutachten, Enwurf | |
| Konstruktion | Bestand + Glasbaukörper | Mischbauweise |
| Projektnummer | 0604 |
Entwurf
Kirche der Sammlung und des Lichtes
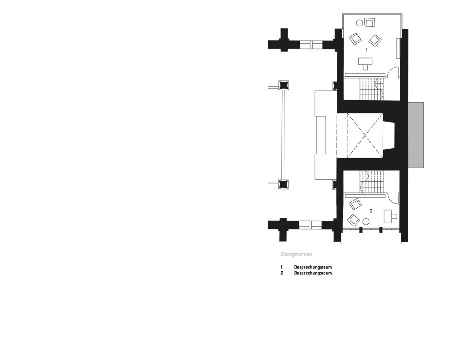
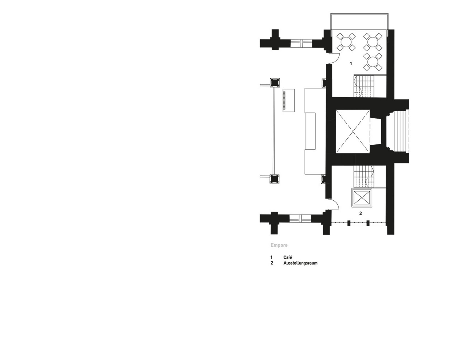
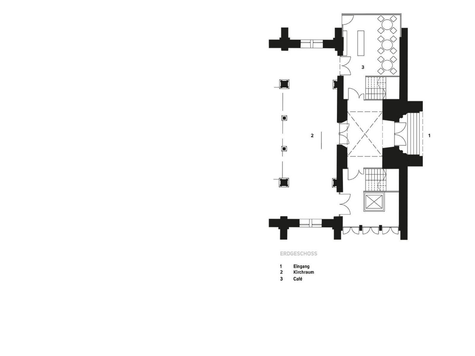
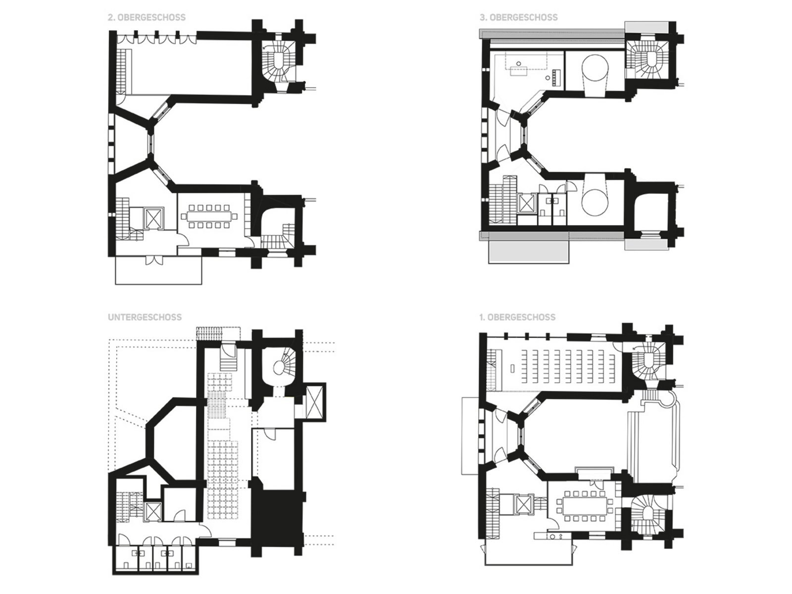
Grundlegender Ansatz ist, für die Gemeinschaft ein neues Zentrum der Versammlung zu schaffen. Die Neuordnung betrifft sowohl den Kirchenraum (neue Position des Altares; Liturgiekonzept) als auch den Bereich des Gemeindehauses. Die architektonischen Mittel sollen dabei zurückhaltend eingesetzt werden. Situationen werden vereinfacht, auf wesentliche Innhalte reduziert und neu interpretiert. Gleichzeitig sollen aber die durch die Neuinterpretation gewonnenen Möglichkeiten der Gemeinde helfen, an diesem Ort, ihr Profil als, strahlendes Zeichen auch im Hinblick auf übergeordnete repräsentative Aufgaben zu entwickeln.
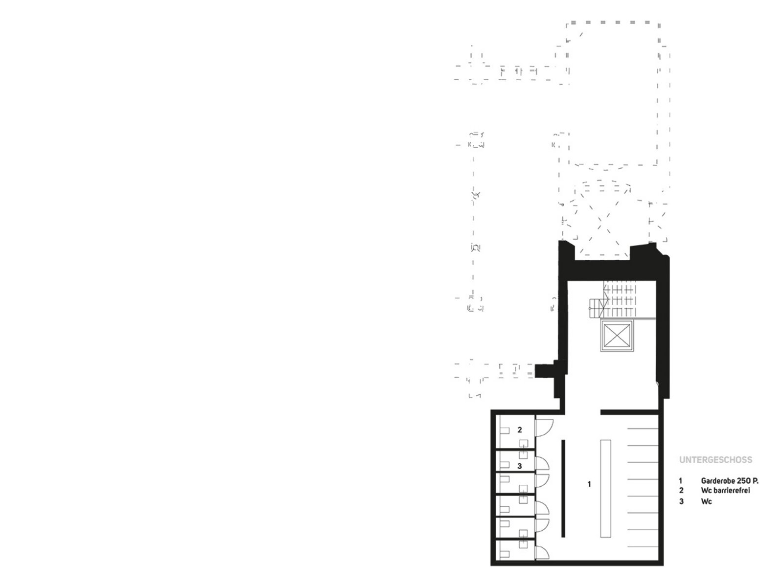
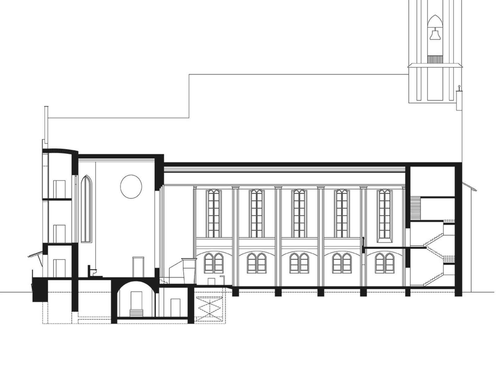
Die Neustrukturierung der St. Markuskirche erfordert im Hinblick auf neue Aufgaben und Projektfelder auch ein „Weiterdenken“ der angesprochenen Programmpunkte. Es war Anliegen des Entwurfes, die Angedachten Programmpunkte als „Impulsgebende“ Elemente einzusetzen und dann im Hinblick auf das weitere Potential hin zu untersuchen und weiter zu Entwickeln. Weiterdenken bedeutet für uns den wertvollen, bisher ungenutzten Raum mit verschiedensten Nutzungen zu belegen und dadurch ein Zeichen setzen, daß Kirche lebt und leuchtet, gerade an diesem Ort der stark umlebt wird in seiner Nähe zur Universität, zu den Pinakotheken und in seiner Nähe zum Zentrum und vor allem Sichtbar werden für die viele Menschen die, die Kirche aus dem Auto im Vorbeifahren wahrnehmen oder eben auch nicht und vor allem auch wie. Wir stellen uns den Kircheturm flankiert von hell erleuchteten Räume vor. Wie der neue Gemeindezugang werden die Seiten des Kirchenturmes nach außen durch leicht vorgeschobene Glasbaukörper akzentuiert. Sie können als „Leuchtzeichen“ in die nächtliche Stadt wirken. Die Treppenanlagen in den Türmen werden entfernt.
m8architekten
christian winter
mia winter
partmbB
parzivalstraße 25
80804 münchen
t +49.89.321 64 98.40
f +49.89.321 64 98.59