m8architekten
christian winter
mia winter
partmbB
parzivalstraße 25
80804 münchen
t +49.89.321 64 98.40
f +49.89.321 64 98.59
| Standort | Gemeinde Haar |
|---|---|
| Jahr | 2016 |
| Status | Entwurf |
| Projektnummer | 15279 |
Ziele
Die Grundschule in Haar besteht aus 5 Zügen und soll auf 9 Züge erweitert werden. Zusätzlich sind eine Dreifach-Turnhalle und eine neue Mensa geplant. Die Fläche des Freiraums soll dabei erhalten bleiben und aufgewertet werden.
Aufgabe für m8architekten war es, eine Machbarkeitsstudie durchzuführen. Dazu wurden städtebauliche Lage, räumliche Dichte, Raumprogramm, Raumbedarf und Kosten analysiert. Der Arbeitsauftrag an das Architekturbüro beinhaltet einen Vorentwurf zu der geplanten Schulerweiterung durch eine Aufstockung oder als Anbau mit einer möglichen Ganztagsbetreuung und die Aufstockung des benachbarten Gymnasiums. Außerdem wurden die Freiräume und die Durchwegung des Geländes neu geplant. Neben dem gestalterischen Part wurden Kosten, Raumprogramm, Fördermöglichkeiten, Grundflächen und Geschossflächen, die Lage der Tiefgarage, Abstellmöglichkeiten für Räder und Roller und der Schulbetrieb während der Baustelle untersucht und festgelegt.
Bestand
Der Standort steht im Kontext des bestehenden Schulcampus der 70er Jahre, der ursprünglich ländlichen Baustruktur des Dorfes Haar und Quartieren aus der Zeit des Jugendstils südlich der Schule.
Die fünfzügige Grundschule und das Gymnasium hatten ursprünglich einen gemeinsamen Haupteingang auf der Westseite. Dieser Eingangsbereich teilte die im südlichen Gebäudeteil sitzende Grundschule von dem im Norden liegenden Gymnasium. Diese zwei Schulen haben getrennte, Richtung Norden beziehungsweise Süden, Ausgänge zum Pausenhof. Mit der Zeit hat man die Grundschule von dem Gymnasium getrennt, sodass die Grundschüler nun über den ursprünglichen Ausgang zum Pausenhof aus und ein gehen. Da der Raumbedarf des Gymnasiums wuchs, wurde ein Stockwerk des linken Grundschulflügels zum Gymnasium umfunktioniert.
Ein Grundschuldorf
Zentrales Thema im Entwurfsprozess waren die Bedürfnisse der Kinder im Besonderen in Bezug auf Massstäblichkeit, Orientierungs- und Identifikationsmöglichkeiten. Das bestehende Schulgelände soll im Süden um ein Grundschuldorf erweitert werden. Zusammen mit den bestehenden Sport- und Schwimmmöglichkeiten soll ein „neu organisierter“ Schul- und Freizeitcampus entstehen. Die Funktionen der Schulerweiterung sind in verschiedenen Gebäuden untergebracht und südlich der bestehenden Schule situiert. Der somit entstandene Schulhof weist in Größe, Proportion und Funktion unterschiedliche, zusammenhängende Freiräume aus – kindgerecht, wohlproportioniert überschaubar und persönlich – ein Dorfanger entsteht. Gegenüber des bestehenden Eingangsbereiches sind die neue Mensa und Bibliothek situiert, der eigentliche Vorplatz der Schule wird räumlich gefasst, und mit diesen „öffentlichen“ Funktionen innerhalb des Schulbetriebes entsteht ein lebendiger Marktplatz. Die Adresse des Grundschuldorfes wird neu definiert und ablesbar.
Nach dem Marktplatz folgt das Atrium mit dem Eingang zur neuen Schule und zur Dreifachturnhalle. Abgesenkt und durch eine großzügige Freitreppe mit Sitzstufen zugänglich liegt der Werkhof. Er sorgt für natürliche Belichtung der bestehenden und neuen Werkräume im Untergeschoß und bietet Platz für Werktätigkeiten im Freien.
Die Turnhalle südlich des Sportplatzes schließt den Dorfanger zum Fußballfeld im Westen bei gleichzeitiger Erhaltung der Sichtbeziehungen und Zugangsmöglichkeit.
Erster Entwurfsgedanke - Schule schlägt Wurzeln
Der erste Entwurf zeichnet sich durch die direkte Beziehung der Klassen zum Außenraum aus. Die Gebäude sind ebenerdig, sodass jede Klasse einen eigenen Ausgang ins Freie erhält. Die Klassenräume im Obergeschoß haben direkt zugeordnete Freiflächen auf dem Gründach.
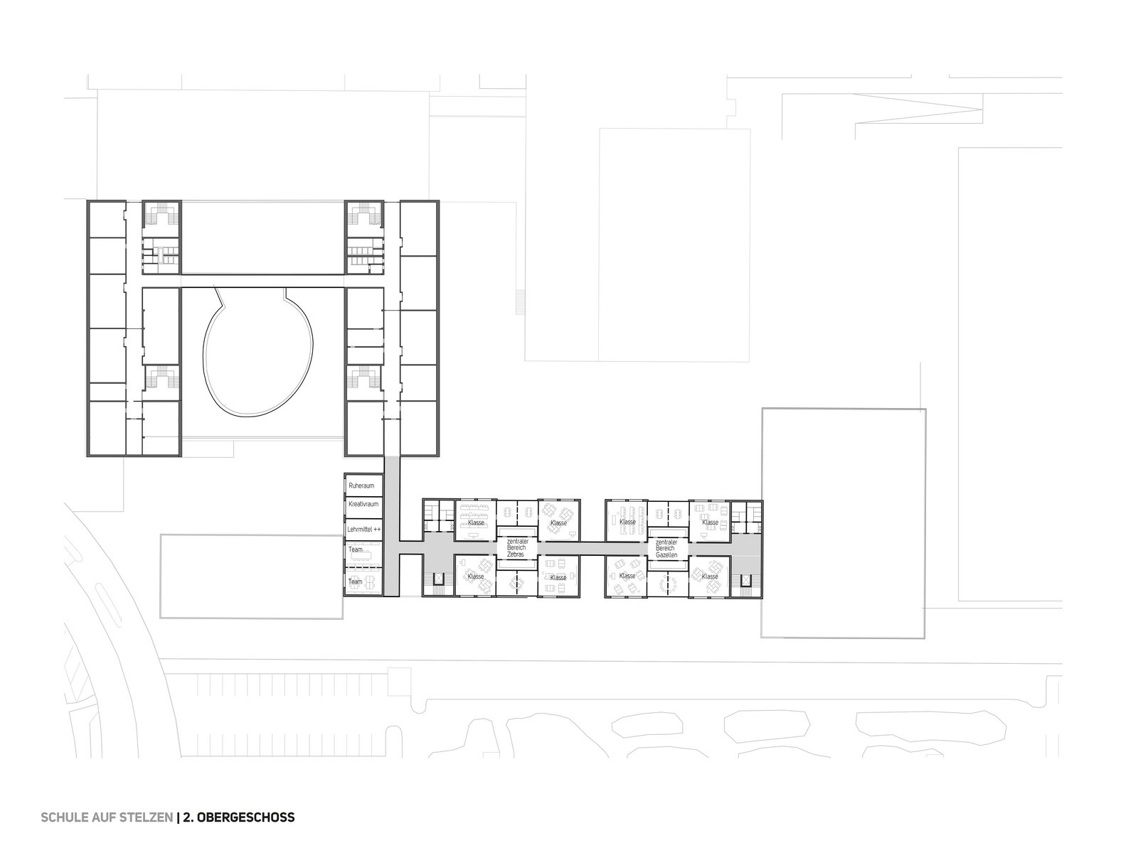
Die Organisation der Räume orientiert sich am Münchener Schulhauskonzept. Die Schule wird in vier „Lernhäuser“ gegliedert, wo jeweils die Klassen derselben Schulstufen zusammen mit Gruppen-, Aufenthaltsräumen und einem Teamzimmer untergebracht sind. Flexibilität innerhalb des „Lernhauses“ und Verleihung einer eigenen Identität sollen einen modernen Unterricht ermöglichen und gleichzeitig den Kindern die Orientierung erleichtern und Geborgenheit vermitteln. Die „Lernhäuser“ bekommen verschieden Namen und erhalten durch unterschiedliche Gestaltung eine eigene Identität.
Die Bibliothek wandert sozusagen vom hintersten Winkel an die Öffentlichkeit. Sie erhält im transparenten Mensagebäude am Marktplatz ihren neuen Standort und rückt ins Blickfeld der Schüler. Dieses neue Zentrum wird zum Treffpunkt für Groß und Klein, es bietet auch Platz für Frühstück und Morgenbetreuung.
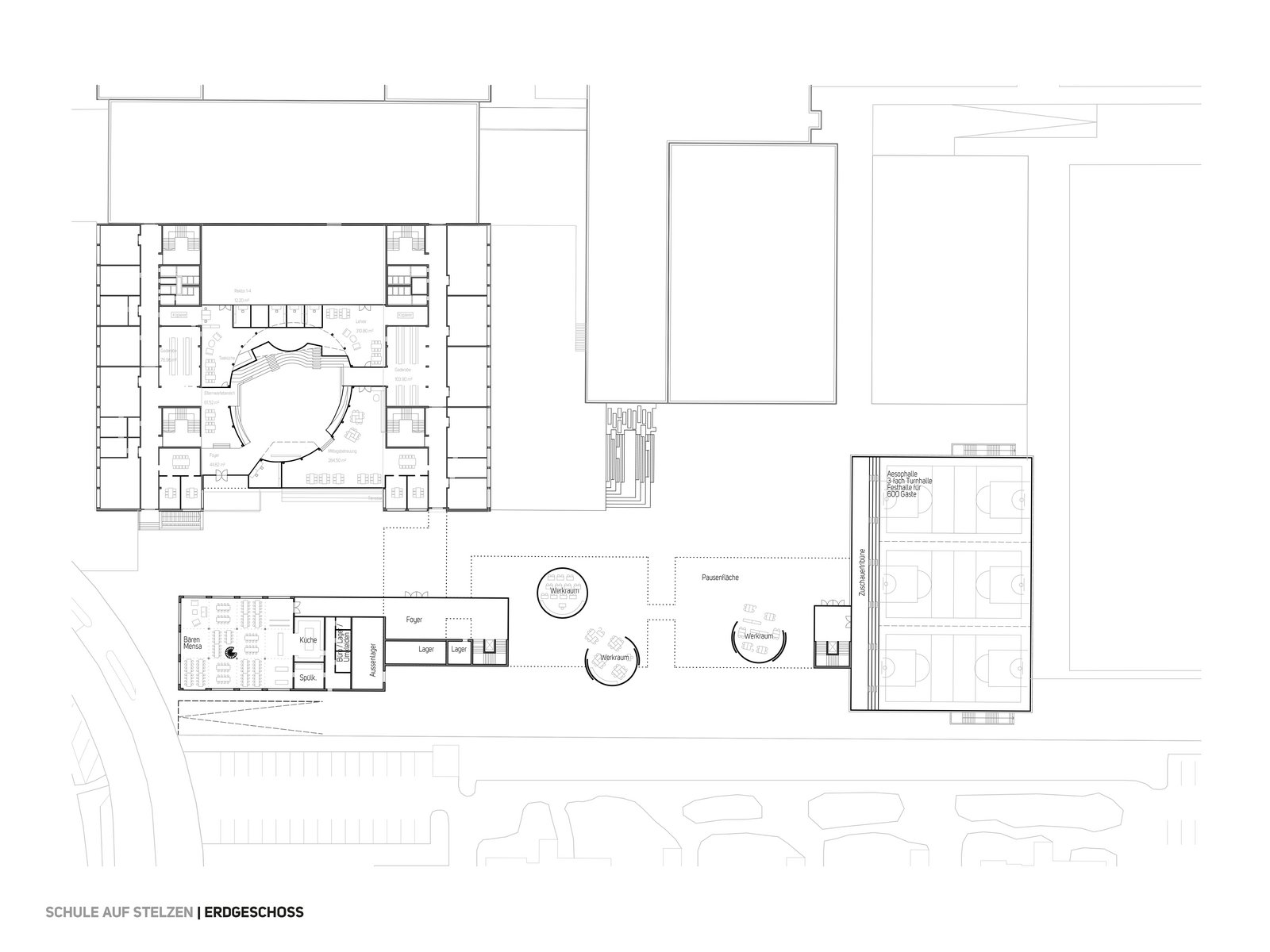
Zweiter Entwurfsgedanke - Schule auf Stelzen
In dem zweiten Entwurfskonzept war der Leitgedanke das neue Schulgebäude anzuheben, um die Freifläche zu maximieren. Dadurch entsteht ein großer zusammenhängender Freiraum. Der Schulhof verknüpft entsprechend dem ersten Entwurf die übergeordneten Funktionsbereiche: Mensa - Sport und Schule. Im 1062m² großen überdachten Bereich sind Werkräume angeordnet. Aufgrund der Aufständerung rückt die Schule wegen der einzuhaltenden Abstandsflächen an den Altbau heran. Dies erleichtert eine bauliche Verbindung des Bestands mit dem Neubau. Dadurch entsteht eine einzige große Schule. Die Mensa bietet Platz für 450 Kinder in zwei Schichten.
m8architekten
christian winter
mia winter
partmbB
parzivalstraße 25
80804 münchen
t +49.89.321 64 98.40
f +49.89.321 64 98.59